 
                 
                    
                 
                    
                 
                    
                 
                             
                    
            For Private Sale
Savills Commercial is delighted to offer for sale medical consulting suites located at 89 Bridge Road, Richmond.
Situated within the prestigious Epworth Hospital Richmond, this is a ‘not to be repeated’ opportunity to enter Melbourne’s busiest medical precinct.
Key attributes of the property include:
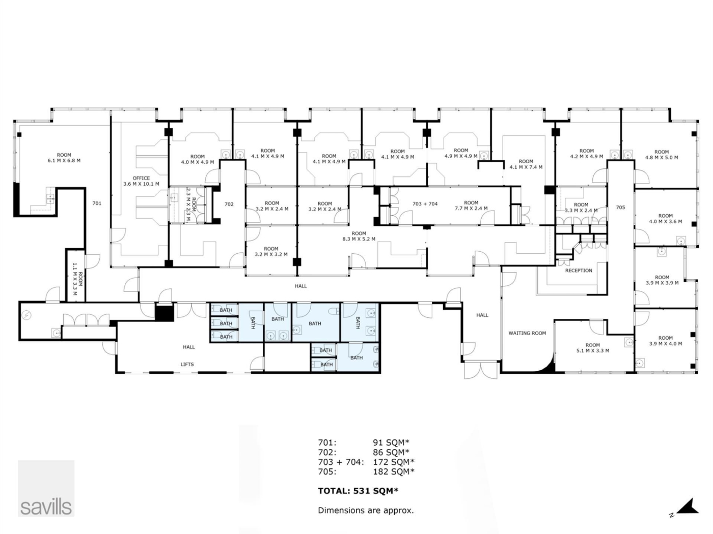
• Four medical suites across five titles available in one line or any combination
• Areas from 86sqm* to 182sqm* with a combined total area of 531sqm*
• Located on level seven, these are the only strata suites in the hospital available for purchase
• Epworth is Victoria’s largest not-for-profit hospital group providing care for over 200,000 patients per annum
• Suitable for a range of medical uses including specialist consulting (orthopaedics, physicians, surgeons), day procedures (plastic surgeons, IVF, Cardiology) and health adjacent (health funds, health insurance)
• Each suite has two car spaces (ten car spaces in total) on a licencing agreement with Epworth Hospital
• Within walking distance of West Richmond Train Station, multiple trams along Bridge Road and convenient access into the Melbourne CBD
*Approximate
For further information please contact:
Julian Heatherich – 0412 995 655
Tom O'Halloran - 0438 078 138
Harrison Casey – 0419 188 881
Remember to mention you found this property on CommercialReady
For Private Sale
Savills Commercial is delighted to offer for sale medical consulting suites located at 89 Bridge Road, Richmond.
Situated within the prestigious Epworth Hospital Richmond, this is a ‘not to be repeated’ opportunity to enter Melbourne’s busiest medical precinct.
Key attributes of the property include:
• Four medical suites across five titles available in one line or any combination
• Areas from 86sqm* to 182sqm* with a combined total area of 531sqm*
• Located on level seven, these are the only strata suites in the hospital available for purchase
• Epworth is Victoria’s largest not-for-profit hospital group providing care for over 200,000 patients per annum
• Suitable for a range of medical uses including specialist consulting (orthopaedics, physicians, surgeons), day procedures (plastic surgeons, IVF, Cardiology) and health adjacent (health funds, health insurance)
• Each suite has two car spaces (ten car spaces in total) on a licencing agreement with Epworth Hospital
• Within walking distance of West Richmond Train Station, multiple trams along Bridge Road and convenient access into the Melbourne CBD
*Approximate
For further information please contact:
Julian Heatherich – 0412 995 655
Tom O'Halloran - 0438 078 138
Harrison Casey – 0419 188 881
Remember to mention you found this property on CommercialReady
 
                     
                     
                     
                     
                     
                    