Watch Watch
Your home of Commercial Ready videos
Watch Watch
Back
Sold Check

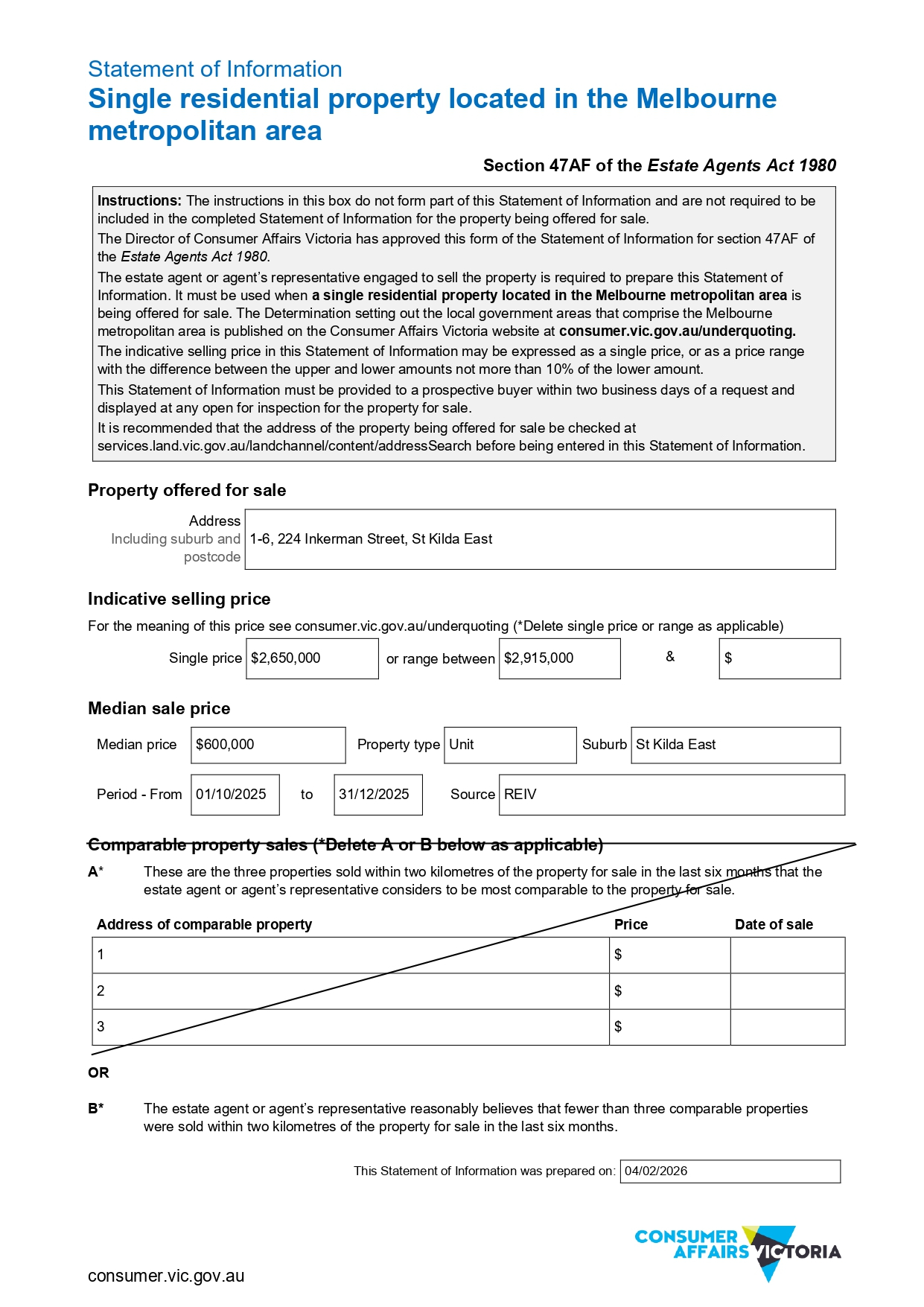
Apartments 1-6, 224 Inkerman Street, St Kilda East, VIC, 3183

+17 Photos
/
Images
Close

Apartments 1-6, 224 Inkerman Street, St Kilda East, VIC, 3183

St Kilda East

×
Sold Check
+19 Photos

Apartments 1-6, 224 Inkerman Street, St Kilda East, VIC, 3183

St Kilda East

SOLD
Apartments 1-6, 224 Inkerman Street, St Kilda East, VIC, 3183

Apartments 1-6, 224 Inkerman Street, St Kilda East, VIC, 3183

Properties / Sold / Victoria / St Kilda East
Tenanted Investment
Selling Method
Auction
Selling Details
Contact Agent
Land Area
501 m² (*approx)
Floor Area
380 m² (*approx)
Property Type
Other, Land
Sub-type
Block of Units / Flats
Est. Income
$159,036 p/a
Zone
General Residential
Show All
Individually Titled Apartment Block on Corner Landholding Offering Numerous Options

***SOLD PRIOR TO AUCTION***

Fully leased 1960's apartment block located in proven location close to a host of enviable lifestyle amenities and Melbourne’s CBD, well suited to both passive and value-add investors

• Whole block currently returning $159,036* p.a. with potential market rental of $165,796* p.a.

• Comprising 6 separately titled apartments (4 x 3 beds & 2 x 1 beds) plus on-site car parking for 6 cars

• Corner General Residential (GRZ1) landholding of 501sqm* with dual frontage totalling 52.2m*

• Ideal “set & forget” investment or value-add / refurbish and sell down

• Strong suburb fundamentals including median house price of $1,700,000 and median unit price of $600,000 (source: REIV)

• Sought-after inner city location close to all transport options, thriving retail amenity, bay beaches and more

For Sale via on-site Auction on Thursday 5th March at 2:00pm.

For more information or to arrange an inspection, please contact the below:

Andrew Greenway 0409 547 626

Michael Gross 0419 355 561

In conjunction with MP Burke:

Pat Burke 0412 554 886

*approximate

Remember to mention you found this property on CommercialReady

Read More
Tenanted Investment
Tenanted Investment

Apartments 1-6, 224 Inkerman Street Investment Summary

Property Type
Other, Land
Sub-type
Block of Units / Flats
Est. Income
$159,036 p/a
Number Of Tenants
6
Land Area
501 m² (*approx)
Floor Area
380 m² (*approx)
Zone
General Residential
Selling Method
Auction
Auction Date
5 Mar 2026 02:00PM
Selling Details
Contact Agent

Investment Highlights

Individually Titled Apartment Block on Corner Landholding Offering Numerous Options

***SOLD PRIOR TO AUCTION***

Fully leased 1960's apartment block located in proven location close to a host of enviable lifestyle amenities and Melbourne’s CBD, well suited to both passive and value-add investors

• Whole block currently returning $159,036* p.a. with potential market rental of $165,796* p.a.

• Comprising 6 separately titled apartments (4 x 3 beds & 2 x 1 beds) plus on-site car parking for 6 cars

• Corner General Residential (GRZ1) landholding of 501sqm* with dual frontage totalling 52.2m*

• Ideal “set & forget” investment or value-add / refurbish and sell down

• Strong suburb fundamentals including median house price of $1,700,000 and median unit price of $600,000 (source: REIV)

• Sought-after inner city location close to all transport options, thriving retail amenity, bay beaches and more

For Sale via on-site Auction on Thursday 5th March at 2:00pm.

For more information or to arrange an inspection, please contact the below:

Andrew Greenway 0409 547 626

Michael Gross 0419 355 561

In conjunction with MP Burke:

Pat Burke 0412 554 886

*approximate

Remember to mention you found this property on CommercialReady

Read More
Tenanted Investment

Finance Calculator

Apartments 1-6, 224 Inkerman Street, St Kilda East, VIC, 3183

Secure/no obligation

Step 1

Loan Variables

Adjust the inputs to explore your indicative finance options.

Estimated Purchase Price: $x,xxx,xxx
What you intend to pay for the property
Your Contribution: $x,xxx,xxx
The amount you’re investing
LVR: $x,xxx,xxx
Loan to Value Ratio

Estimated Purchase Price:

What you intend to pay for the property

$

Your Contribution:

The amount you’re investing

Min: 0% - Max: 90% of purchase price.

$

LVR:

Loan to Value Ratio

Min: 10% - Max: 100% of purchase price.

%

Loan Analysis

Estimated Purchase Price:
Your expected purchase price. Final lender valuation may differ and will affect LVR and borrowing.
$x,xxx,xxx
Your Contribution:
Your funds toward the purchase (savings/equity/gift). Does not include costs like duty, legals or LMI.
$xxx,xxx
Loan to Value Ratio:
Calculated as Loan ÷ Price. Guidance only. Lender policy caps vary by property type, location and borrower profile.
xx%
Loan Amount:
Estimated loan based on your inputs. Excludes fees, LMI and costs. Subject to credit assessment and valuation.
in full report
Interest Only: Monthly Repayments
Estimate using interest-only at 5.85% p.a. Excludes fees. Rates can change without notice.
in full report
Principal & Interest: Monthly Repayments
Estimate at 5.85% p.a. over 15 years, monthly compounding. Excludes fees/LMI. Rates may change.
in full report
Stamp Duty: victoria
Indicative rate for victoria. Concessions/exemptions (e.g., first home) may apply and change the amount.
in full report
Stamp Duty Cost:
Estimate only. Check SRO victoria for the latest rules and any concessions that may reduce this figure.
in full report

Property Location of Apartments 1-6, 224 Inkerman Street, St Kilda East, VIC, 3183

One moment please.

Retrieving map...

Apartments 1-6, 224 Inkerman Street, St Kilda East, VIC, 3183 St Kilda East
calculator-icon Yield Calculator
calcultor-icon Yield Calculator