Watch Watch
Your home of Commercial Ready videos
Watch Watch
Back
Sold Check

Unit 1, 94 Grove Road, Glenorchy, TAS, 7010

+17 Photos
/
Images
Close

Unit 1, 94 Grove Road, Glenorchy, TAS, 7010

Glenorchy

×
Sold Check
+19 Photos

Unit 1, 94 Grove Road, Glenorchy, TAS, 7010

Glenorchy

SOLD
Unit 1, 94 Grove Road, Glenorchy, TAS, 7010

Unit 1, 94 Grove Road, Glenorchy, TAS, 7010

Properties / Sold / Tasmania / Glenorchy
Tenanted Investment
Selling Method
Sale by Negotiation
Selling Details
$5,350,000
Land Area
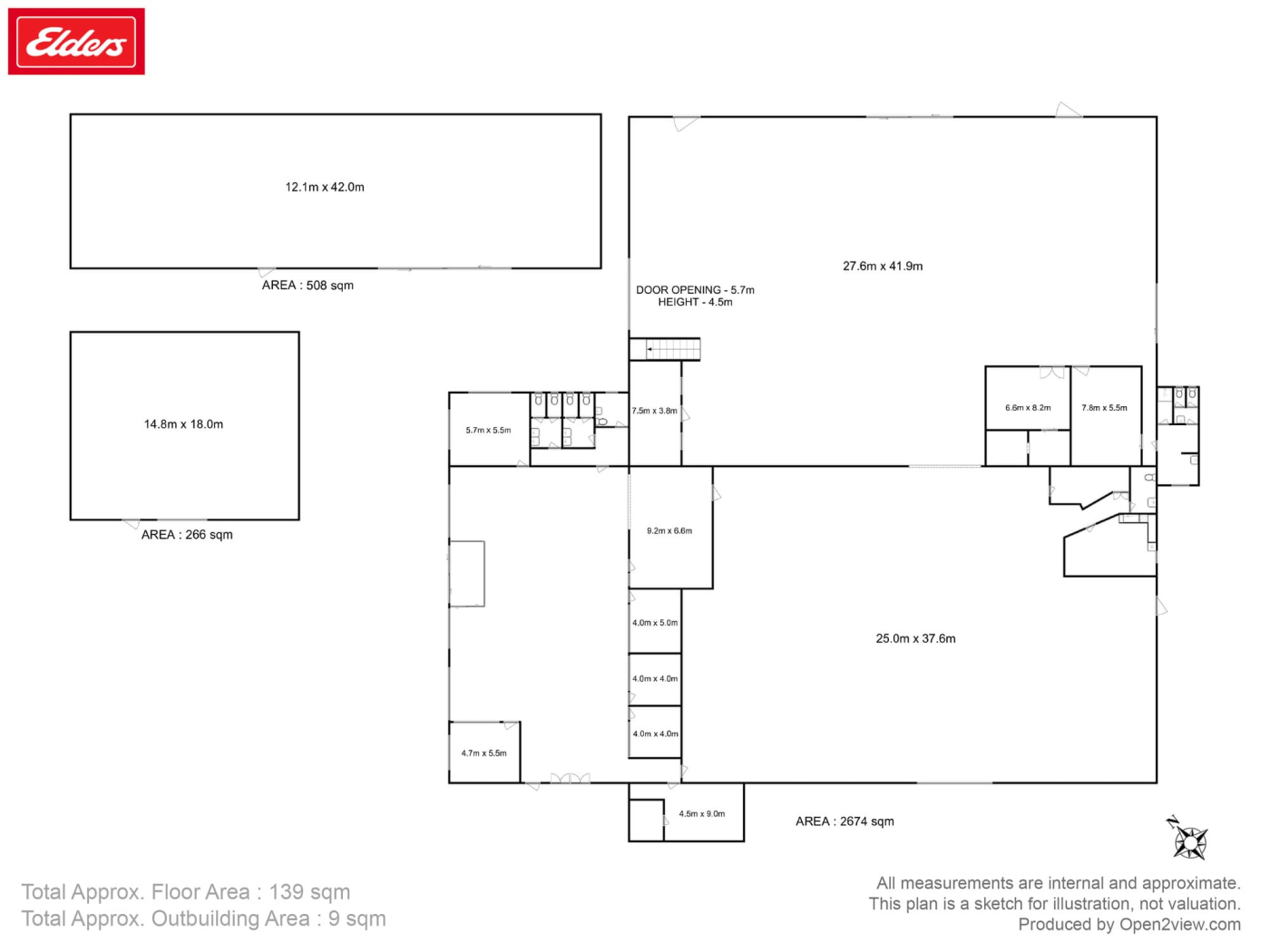
8,492 m² (*approx)
Floor Area
3448 m² (*approx)
Property Type
Industrial
Sub-type
Office/Warehouse, Warehouse Showroom
Est. Income
$332,727 p/a
Zone
Light Industrial
Show All
Strong Income, Secure Lease – Premium Location
  • Net Income: $342,709pa* as at 31 July 25
  • 3.50 Year WALE with options to 2033
  • Greater of 3% or CPI annual increases

Elders Commercial has the exclusive opportunity to offer for sale Unit 1, 94 Grove Road, Glenorchy, Tasmania.

The property is situated in a well-established mixed-use area, approximately 10 kilometres northwest of the Hobart CBD with excellent access via the Brooker Highway.

Key highlights of the property include:

+ Strategic location with a flexible light industrial zoning

+ National award-winning dealership - Tas Hino regional dealer of the year - President's Award

+ Proximity to Brooker Highway and main arterial road network

+ Large mixed-use main building with a gross lettable area of 2,674* sqm (1,488* sqm Showroom – 1,186* sqm Warehouse)

+ Ancillary workshop and store comprising an additional 774* sqm gross lettable area

+ 34* designated on-site parking spaces

+ Lease with Tas Trucks – Statewide transport and materials handling sector

+ Tenant locations in Greater Hobart, Launceston and Devonport servicing the entire State

+ 3.50* Yr WALE expiring 31-July-2028

+ 1 x 5 Yr option to July 2033

+ Greater of 3% or CPI annual increases

+ Net income: $342,709* pa** as at 31 July 2025

Contact George Burbury or Cale Ayres to discuss further or arrange an inspection.

*Approximately

**Before owner outgoings

Remember to mention you found this property on CommercialReady

Read More
Tenanted Investment
Tenanted Investment

94 Grove Road Investment Summary

Property Type
Industrial
Sub-type
Office/Warehouse, Warehouse Showroom
Est. Income
$332,727 p/a
Wale
3.5 years
Land Area
8,492 m² (*approx)
Floor Area
3448 m² (*approx)
Zone
Light Industrial
Selling Method
Sale by Negotiation
Selling Details
$5,350,000

Investment Highlights

Strong Income, Secure Lease – Premium Location
  • Net Income: $342,709pa* as at 31 July 25
  • 3.50 Year WALE with options to 2033
  • Greater of 3% or CPI annual increases

Elders Commercial has the exclusive opportunity to offer for sale Unit 1, 94 Grove Road, Glenorchy, Tasmania.

The property is situated in a well-established mixed-use area, approximately 10 kilometres northwest of the Hobart CBD with excellent access via the Brooker Highway.

Key highlights of the property include:

+ Strategic location with a flexible light industrial zoning

+ National award-winning dealership - Tas Hino regional dealer of the year - President's Award

+ Proximity to Brooker Highway and main arterial road network

+ Large mixed-use main building with a gross lettable area of 2,674* sqm (1,488* sqm Showroom – 1,186* sqm Warehouse)

+ Ancillary workshop and store comprising an additional 774* sqm gross lettable area

+ 34* designated on-site parking spaces

+ Lease with Tas Trucks – Statewide transport and materials handling sector

+ Tenant locations in Greater Hobart, Launceston and Devonport servicing the entire State

+ 3.50* Yr WALE expiring 31-July-2028

+ 1 x 5 Yr option to July 2033

+ Greater of 3% or CPI annual increases

+ Net income: $342,709* pa** as at 31 July 2025

Contact George Burbury or Cale Ayres to discuss further or arrange an inspection.

*Approximately

**Before owner outgoings

Remember to mention you found this property on CommercialReady

Read More

Finance Calculator

Unit 1, 94 Grove Road, Glenorchy, TAS, 7010

Secure/no obligation

Step 1

Loan Variables

Adjust the inputs to explore your indicative finance options.

Estimated Purchase Price: $x,xxx,xxx
What you intend to pay for the property
Your Contribution: $x,xxx,xxx
The amount you’re investing
LVR: $x,xxx,xxx
Loan to Value Ratio

Estimated Purchase Price:

What you intend to pay for the property

$

Your Contribution:

The amount you’re investing

Min: 0% - Max: 90% of purchase price.

$

LVR:

Loan to Value Ratio

Min: 10% - Max: 100% of purchase price.

%

Loan Analysis

Estimated Purchase Price:
Your expected purchase price. Final lender valuation may differ and will affect LVR and borrowing.
$x,xxx,xxx
Your Contribution:
Your funds toward the purchase (savings/equity/gift). Does not include costs like duty, legals or LMI.
$xxx,xxx
Loan to Value Ratio:
Calculated as Loan ÷ Price. Guidance only. Lender policy caps vary by property type, location and borrower profile.
xx%
Loan Amount:
Estimated loan based on your inputs. Excludes fees, LMI and costs. Subject to credit assessment and valuation.
in full report
Interest Only: Monthly Repayments
Estimate using interest-only at 5.85% p.a. Excludes fees. Rates can change without notice.
in full report
Principal & Interest: Monthly Repayments
Estimate at 5.85% p.a. over 15 years, monthly compounding. Excludes fees/LMI. Rates may change.
in full report
Stamp Duty: tasmania
Indicative rate for tasmania. Concessions/exemptions (e.g., first home) may apply and change the amount.
in full report
Stamp Duty Cost:
Estimate only. Check SRO tasmania for the latest rules and any concessions that may reduce this figure.
in full report

Property Location of Unit 1, 94 Grove Road, Glenorchy, TAS, 7010

One moment please.

Retrieving map...

Unit 1, 94 Grove Road, Glenorchy, TAS, 7010 Glenorchy
Elders Tasmania
Elders Tasmania
5 Victoria Street, Hobart, Tasmania, Australia, 7000
View Agency Profile
calculator-icon Yield Calculator
calcultor-icon Yield Calculator