Watch Watch
Your home of Commercial Ready videos
Watch Watch
Back

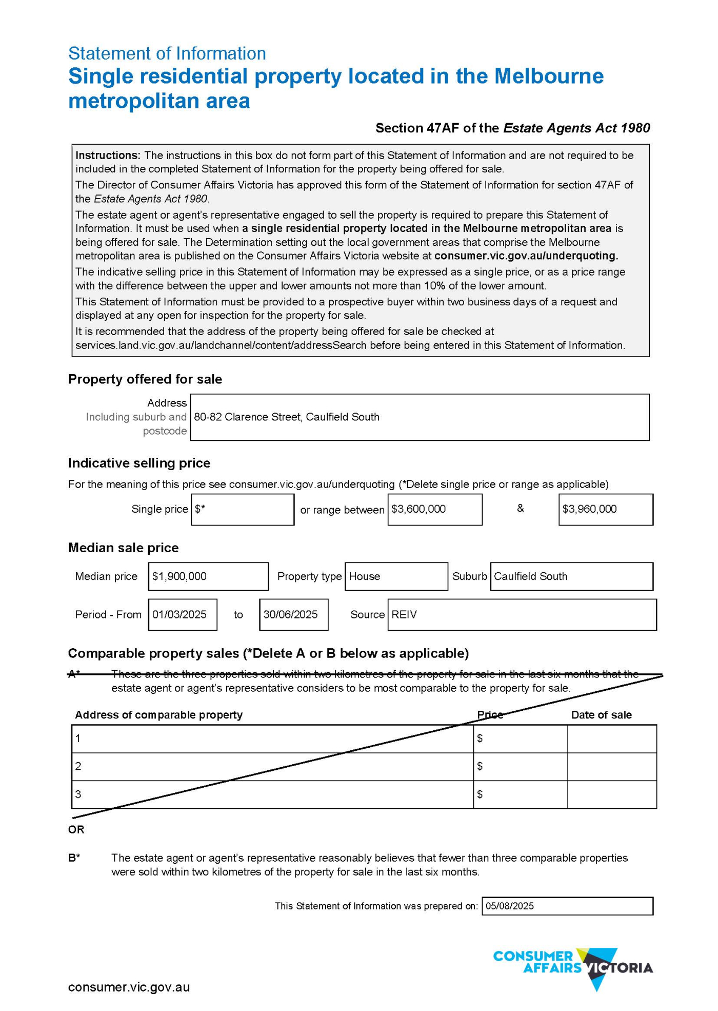
80-82 Clarence Street, Caulfield South, VIC, 3162

+17 Photos
/
Images
Close

80-82 Clarence Street, Caulfield South, VIC, 3162

Caulfield South

×
+19 Photos

80-82 Clarence Street, Caulfield South, VIC, 3162

Caulfield South

80-82 Clarence Street, Caulfield South, VIC, 3162

80-82 Clarence Street, Caulfield South, VIC, 3162

Properties / Buy / Victoria / Caulfield South
Tenanted Investment
Selling Method
Auction
Selling Details
Contact Agent
Land Area
1,058 m² (*approx)
Floor Area
690 m² (*approx)
Property Type
Land, Other
Sub-type
Block of Units / Flats
Est. Income
$237,240 p/a
Show All
Fully Refurbished Block of Apartments in Blue Chip Residential Locale

Superbly presented apartment complex, ideal as a set & forget investment with potential for rental uplift or subdivide and sell down individual apartments (STCA), located close to a host of amazing lifestyle amenities including all forms of public transport, schools, shops, cafes, restaurants and parklands.

• Whole apartment block “fully let” returning $237,240 p.a.*

• Comprising 11 one-bedroom apartments plus on-site car parking

• All apartments feature secure entry, intercom, laundry facilities in the bathroom, and either a private balcony or courtyard

• Substantial 1,058sqm* landholding

• Extensively renovated in 2020 providing significant depreciation benefits

• Strong suburb fundamentals including median house price of $1.9m (up 13.8%) and unit price of $1.2m (up 7.4%)^

For Sale via on-site Auction on Thursday 4th September 2025 at 12pm.

OPEN FOR INSPECTION TIMES:

Every Saturday throughout the campaign between 10am - 10.30am

Every Wednesday throughout the campaign between 5pm - 5.30pm

For further information or to arrange a private inspection, please contact:

Andrew Greenway | 0409 547 626

Alex Ham | 0410 545 226

*Approximate

STCA - Subject to Council Approval

^Source: REIV

Remember to mention you found this property on CommercialReady

Read More
Dataroom
Tenanted Investment
Tenanted Investment

80-82 Clarence Street Investment Summary

Property Type
Land, Other
Sub-type
Block of Units / Flats
Est. Income
$237,240 p/a
Land Area
1,058 m² (*approx)
Floor Area
690 m² (*approx)
Selling Method
Auction
DATAROOM AVAILABLE
Gain Access
Auction Date
4 Sep 2025 12:00PM
Selling Details
Contact Agent

Investment Highlights

Fully Refurbished Block of Apartments in Blue Chip Residential Locale

Superbly presented apartment complex, ideal as a set & forget investment with potential for rental uplift or subdivide and sell down individual apartments (STCA), located close to a host of amazing lifestyle amenities including all forms of public transport, schools, shops, cafes, restaurants and parklands.

• Whole apartment block “fully let” returning $237,240 p.a.*

• Comprising 11 one-bedroom apartments plus on-site car parking

• All apartments feature secure entry, intercom, laundry facilities in the bathroom, and either a private balcony or courtyard

• Substantial 1,058sqm* landholding

• Extensively renovated in 2020 providing significant depreciation benefits

• Strong suburb fundamentals including median house price of $1.9m (up 13.8%) and unit price of $1.2m (up 7.4%)^

For Sale via on-site Auction on Thursday 4th September 2025 at 12pm.

OPEN FOR INSPECTION TIMES:

Every Saturday throughout the campaign between 10am - 10.30am

Every Wednesday throughout the campaign between 5pm - 5.30pm

For further information or to arrange a private inspection, please contact:

Andrew Greenway | 0409 547 626

Alex Ham | 0410 545 226

*Approximate

STCA - Subject to Council Approval

^Source: REIV

Remember to mention you found this property on CommercialReady

Read More
Dataroom
Tenanted Investment

Finance Calculator

80-82 Clarence Street, Caulfield South, VIC, 3162

Secure/no obligation

Step 1

Loan Variables

Adjust the inputs to explore your indicative finance options.

Estimated Purchase Price: $x,xxx,xxx
What you intend to pay for the property
Your Contribution: $x,xxx,xxx
The amount you’re investing
LVR: $x,xxx,xxx
Loan to Value Ratio

Estimated Purchase Price:

What you intend to pay for the property

$

Your Contribution:

The amount you’re investing

Min: 0% - Max: 90% of purchase price.

$

LVR:

Loan to Value Ratio

Min: 10% - Max: 100% of purchase price.

%

Loan Analysis

Estimated Purchase Price:
Your expected purchase price. Final lender valuation may differ and will affect LVR and borrowing.
$x,xxx,xxx
Your Contribution:
Your funds toward the purchase (savings/equity/gift). Does not include costs like duty, legals or LMI.
$xxx,xxx
Loan to Value Ratio:
Calculated as Loan ÷ Price. Guidance only. Lender policy caps vary by property type, location and borrower profile.
xx%
Loan Amount:
Estimated loan based on your inputs. Excludes fees, LMI and costs. Subject to credit assessment and valuation.
in full report
Interest Only: Monthly Repayments
Estimate using interest-only at 5.85% p.a. Excludes fees. Rates can change without notice.
in full report
Principal & Interest: Monthly Repayments
Estimate at 5.85% p.a. over 15 years, monthly compounding. Excludes fees/LMI. Rates may change.
in full report
Stamp Duty: victoria
Indicative rate for victoria. Concessions/exemptions (e.g., first home) may apply and change the amount.
in full report
Stamp Duty Cost:
Estimate only. Check SRO victoria for the latest rules and any concessions that may reduce this figure.
in full report

Property Location of 80-82 Clarence Street, Caulfield South, VIC, 3162

One moment please.

Retrieving map...

80-82 Clarence Street, Caulfield South, VIC, 3162 Caulfield South
Enquire
calculator-icon Yield Calculator
calcultor-icon Yield Calculator