Watch Watch
Your home of Commercial Ready videos
Watch Watch
Back

74-76 Elizabeth Street, Hobart, TAS, 7000

+20 Photos
/
Images
Close

74-76 Elizabeth Street, Hobart, TAS, 7000

Hobart

×
+22 Photos

74-76 Elizabeth Street, Hobart, TAS, 7000

Hobart

74-76 Elizabeth Street, Hobart, TAS, 7000

74-76 Elizabeth Street, Hobart, TAS, 7000

Properties / Buy / Tasmania / Hobart
Tenanted Investment
Selling Method
EOI
Selling Details
Contact Agent
Land Area
870 m² (*approx)
Floor Area
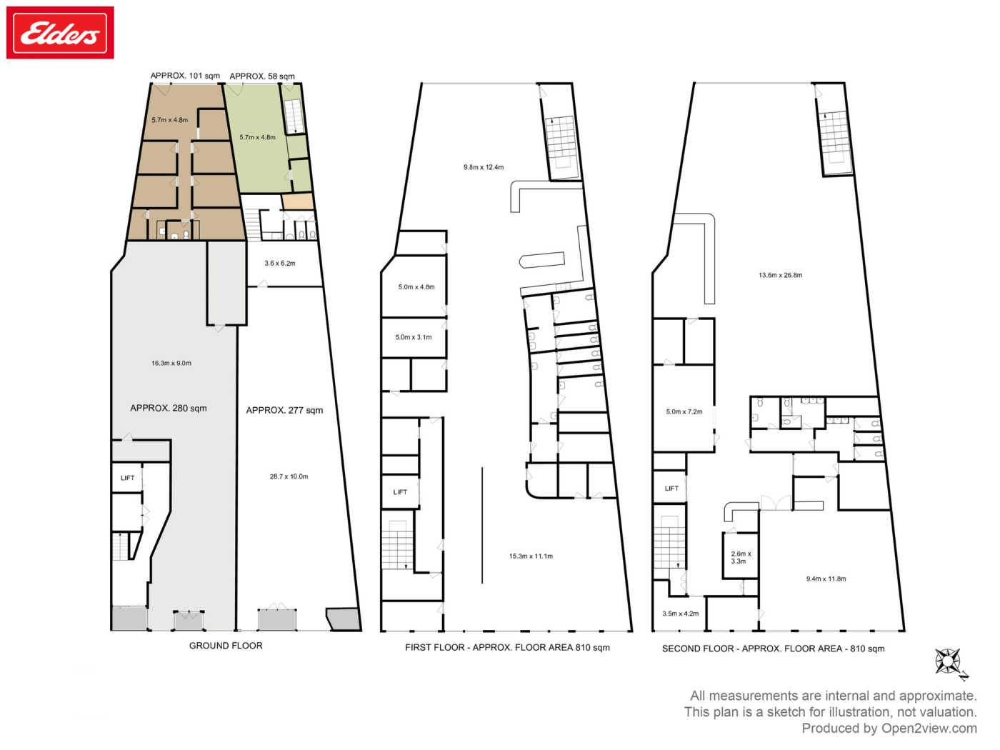
2336 m² (*approx)
Property Type
Retail, Offices
Est. Income
$535,544 p/a
Fully Leased
Marinus Link and The Workers Club
Show All
Fully leased CBD trophy with 5.2 year* WALE
  • Fully leased CBD flagship asset
  • WALE of 5.2 years* (as at October 2025)
  • Building Area of 2,336 sqm*

Elders Commercial is proud to offer to market this fully leased, high-profile commercial asset in the heart of Hobart’s CBD. Located just 30 metres from the Elizabeth Street Mall, the property benefits from dual street frontages and a commanding position in the city’s premier commercial and retail precinct. The asset comprises six tenancies across three levels and is anchored by nationally significant infrastructure tenant Marinus Link and hospitality operator The Workers Club.

Recent capital works include a foyer refurbishment and lift upgrade, with high-grade fitouts delivered for both upper-floor tenants in recent years. With a diversified income stream and strong tenant profile, the property delivers immediate income along with longer-term potential for rental uplift or future redevelopment**, all within one of the most supply-constrained CBD office markets in the country.

Investment Highlights

• Fully leased CBD flagship asset

• WALE of 5.2 years* (as at October 2025)

• Building Area of 2,336 sqm* across three fully leased levels

• Anchored by Marinus Link and The Workers Club with A-grade fitouts

• Recently upgraded building services, including refurbished foyer and lift

• Zoned Central Business under the Tasmanian Planning Scheme - Hobart

• Prime location just 30m* from the Elizabeth Street Mall with strong foot traffic

• Net passing income of $535,544* + GST

Method of Sale: Expressions of Interest closing Thursday 6th November 2025 at 4pm (AEDT).

For further information or to arrange an inspection, please contact George Burbury or Scott Newton.

*Approximate.

**STCA

Remember to mention you found this property on CommercialReady

Read More
Tenanted Investment
Tenanted Investment

74-76 Elizabeth Street Investment Summary

Property Type
Retail, Offices
Est. Income
$535,544 p/a
Tenant
Marinus Link and The Workers Club
Wale
5.2 years
Land Area
870 m² (*approx)
Floor Area
2336 m² (*approx)
Selling Method
EOI
EOI Closing Date
6 Nov 2025 04:00PM
Selling Details
Contact Agent

Investment Highlights

Fully leased CBD trophy with 5.2 year* WALE
  • Fully leased CBD flagship asset
  • WALE of 5.2 years* (as at October 2025)
  • Building Area of 2,336 sqm*

Elders Commercial is proud to offer to market this fully leased, high-profile commercial asset in the heart of Hobart’s CBD. Located just 30 metres from the Elizabeth Street Mall, the property benefits from dual street frontages and a commanding position in the city’s premier commercial and retail precinct. The asset comprises six tenancies across three levels and is anchored by nationally significant infrastructure tenant Marinus Link and hospitality operator The Workers Club.

Recent capital works include a foyer refurbishment and lift upgrade, with high-grade fitouts delivered for both upper-floor tenants in recent years. With a diversified income stream and strong tenant profile, the property delivers immediate income along with longer-term potential for rental uplift or future redevelopment**, all within one of the most supply-constrained CBD office markets in the country.

Investment Highlights

• Fully leased CBD flagship asset

• WALE of 5.2 years* (as at October 2025)

• Building Area of 2,336 sqm* across three fully leased levels

• Anchored by Marinus Link and The Workers Club with A-grade fitouts

• Recently upgraded building services, including refurbished foyer and lift

• Zoned Central Business under the Tasmanian Planning Scheme - Hobart

• Prime location just 30m* from the Elizabeth Street Mall with strong foot traffic

• Net passing income of $535,544* + GST

Method of Sale: Expressions of Interest closing Thursday 6th November 2025 at 4pm (AEDT).

For further information or to arrange an inspection, please contact George Burbury or Scott Newton.

*Approximate.

**STCA

Remember to mention you found this property on CommercialReady

Read More
Tenanted Investment

Finance Calculator

74-76 Elizabeth Street, Hobart, TAS, 7000

Secure/no obligation

Step 1

Loan Variables

Adjust the inputs to explore your indicative finance options.

Estimated Purchase Price: $x,xxx,xxx
What you intend to pay for the property
Your Contribution: $x,xxx,xxx
The amount you’re investing
LVR: $x,xxx,xxx
Loan to Value Ratio

Estimated Purchase Price:

Property price based on our
internal data modelling and market trends.

What you intend to pay for the property

$

Your Contribution:

The amount you’re investing

Min: 0% - Max: 90% of purchase price.

$

LVR:

Loan to Value Ratio

Min: 10% - Max: 100% of purchase price.

%

Loan Analysis

Estimated Purchase Price:
Your expected purchase price. Final lender valuation may differ and will affect LVR and borrowing.
$x,xxx,xxx
Your Contribution:
Your funds toward the purchase (savings/equity/gift). Does not include costs like duty, legals or LMI.
$xxx,xxx
Loan to Value Ratio:
Calculated as Loan ÷ Price. Guidance only. Lender policy caps vary by property type, location and borrower profile.
xx%
Loan Amount:
Estimated loan based on your inputs. Excludes fees, LMI and costs. Subject to credit assessment and valuation.
$xxx,xxx
Interest Only: Monthly Repayments
Estimate using interest-only at p.a. Excludes fees. Rates can change without notice.
in full report
Principal & Interest: Monthly Repayments
Estimate at p.a. over 15 years, monthly compounding. Excludes fees/LMI. Rates may change.
in full report
Stamp Duty: tasmania
Indicative rate for tasmania. Concessions/exemptions (e.g., first home) may apply and change the amount.
in full report
Stamp Duty Cost:
Estimate only. Check SRO tasmania for the latest rules and any concessions that may reduce this figure.
in full report

Property Location of 74-76 Elizabeth Street, Hobart, TAS, 7000

Property Map
Explore other suburbs in this area
Explore other suburbs in this area
Enquire
calculator-icon Yield Calculator
calcultor-icon Yield Calculator