Watch Watch
Your home of Commercial Ready videos
Watch Watch
Back
Sold Check

73 Railway Parade North, Glen Waverley, VIC, 3150

+17 Photos
/
Images
Close

73 Railway Parade North, Glen Waverley, VIC, 3150

Glen Waverley

×
Sold Check
+19 Photos

73 Railway Parade North, Glen Waverley, VIC, 3150

Glen Waverley

SOLD
73 Railway Parade North, Glen Waverley, VIC, 3150

73 Railway Parade North, Glen Waverley, VIC, 3150

Properties / Sold / Victoria / Glen Waverley
Tenanted Investment
Selling Method
Auction
Selling Details
CONTACT AGENT
Land Area
192.95 m² (*approx)
Floor Area
182 m² (*approx)
Property Type
Retail, Offices, Land
Est. Income
$122,055 p/a
Fully Leased
JRW Property International Pty Ltd
Show All
Secure a Generational Blue-Chip Freehold in the Heart of Glen Waverley
  • Secure 'Set-and-Forget' Investment
  • Irreplaceable Epicentre Location
  • Future-Proofed for Unprecedented Growth

73 Railway Parade North, Glen Waverley VIC 315

RWC Glen Waverley is proud to present a rare and affordable freehold investment, perfectly positioned for exceptional long-term growth.

This is your opportunity to acquire a coveted piece of Glen Waverley real estate in the absolute epicentre of one of Melbourne's most dynamic suburban activity centres.

Key Highlights of this Premier Opportunity:

• Anchored by a Secure, Long-Term Tenant Fully leased to the established JRW Property International Pty Ltd on a 5-year lease with two additional 5-year options, offering outstanding income security through to 2039.

• 'Set-and-Forget' Income with Guaranteed Annual Growth Returning a significant net income of $122,055 per annum*(As of 31/10/2025) + GST, supported by fixed 3% annual rent increases for a secure, passive, and growing income stream.

• Irreplaceable Location in a Tightly Held Precinct Positioned on a prime 190sqm* Commercial 1 Zone (C1Z) landholding directly opposite the renowned The Glen Shopping Centre and the bustling Glen Waverley transport interchange.

• Future-Proofed by Unprecedented Infrastructure Investment Located at the doorstep of the future Suburban Rail Loop (SRL) station, a city-shaping project set to deliver thousands of new patrons to the area daily and solidify this location as a key commercial hub.

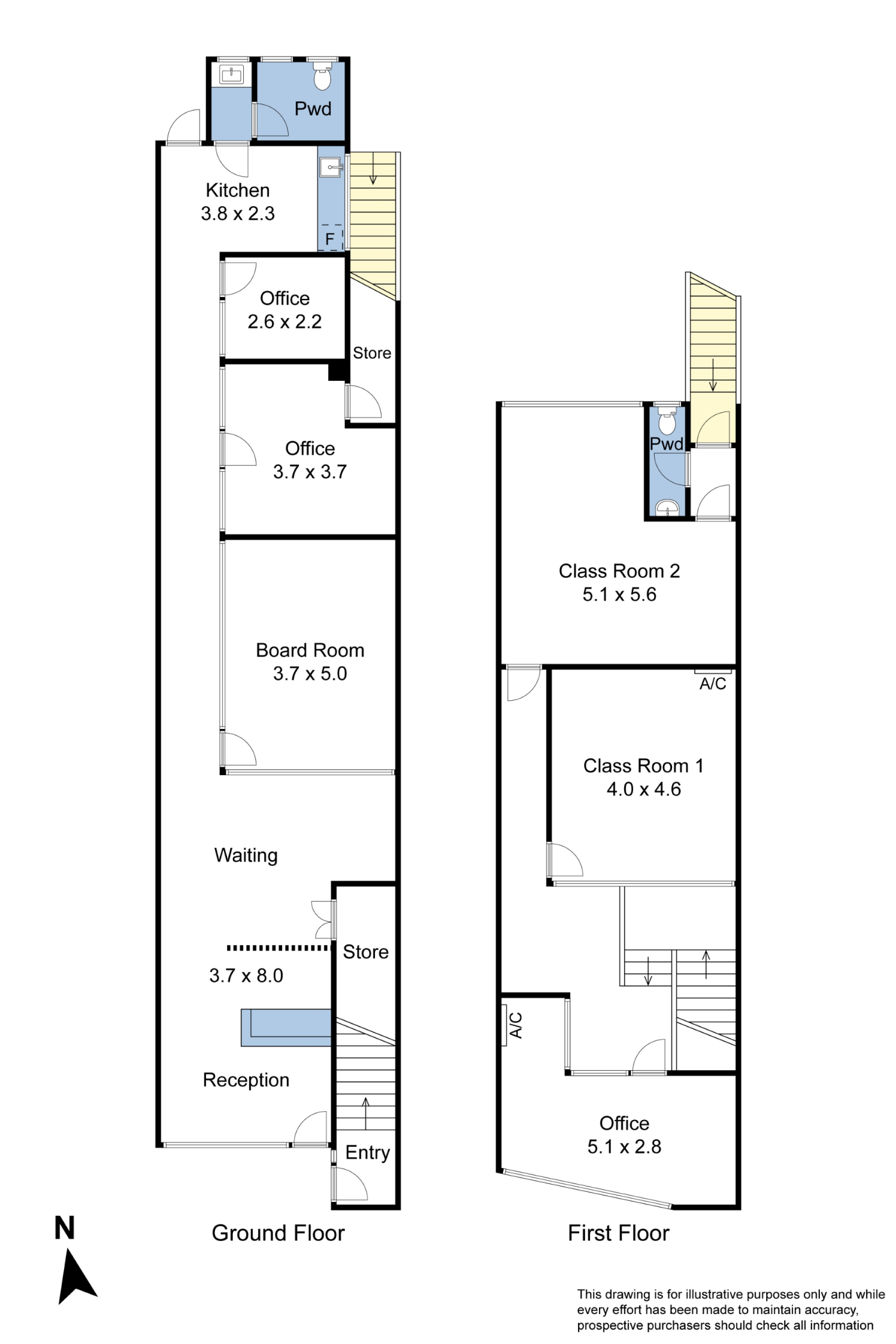
• Substantial Two-Level Freehold Building A versatile 182.5sqm* building with prime ground-floor exposure and first-floor offices, ideal for the current tenant and adaptable for a range of future uses (STCA).

• Significant Future Upside (STCA) Opportunity to improve and extend the current building envelope to capitalise on the exciting growth of the Glen Waverley Activity Centre (GWAC).

• Rare On-Site Parking Featuring secure rear access with on-title parking for three vehicles-an invaluable asset in this high-density precinct.

The Opportunity:

Freehold assets of this calibre are seldom available. This is the definition of a 'set-and-forget' investment, providing immediate, secure income with guaranteed growth. The strategic C1Z landholding presents outstanding future potential for value-add initiatives or development (STCA)

in a precinct with a proven track record of multi-level success.

Surrounded by national retailers, major banks, and a thriving dining and entertainment scene, 73 Railway Parade North is perfectly positioned to leverage the ongoing evolution and government-backed expansion of Glen Waverley.

For Sale by Public Auction: Wednesday, 19th November 2025 at 1:00 PM (AEDT) on-site.

For further information or to arrange an exclusive inspection, please contact the selling agents:

RYAN TRICKEY

0400 380 438

[email protected]

WILL JONAS

0422 883 011

[email protected]

RWC Glen Waverley

*Approximately

Remember to mention you found this property on CommercialReady

Read More
Tenanted Investment
Tenanted Investment

73 Railway Parade North Investment Summary

Property Type
Retail, Offices, Land
Est. Income
$122,055 p/a
Tenant
JRW Property International Pty Ltd
Land Area
192.95 m² (*approx)
Floor Area
182 m² (*approx)
Selling Method
Auction
Auction Date
19 Nov 2025 01:00PM
Selling Details
CONTACT AGENT

Investment Highlights

Secure a Generational Blue-Chip Freehold in the Heart of Glen Waverley
  • Secure 'Set-and-Forget' Investment
  • Irreplaceable Epicentre Location
  • Future-Proofed for Unprecedented Growth

73 Railway Parade North, Glen Waverley VIC 315

RWC Glen Waverley is proud to present a rare and affordable freehold investment, perfectly positioned for exceptional long-term growth.

This is your opportunity to acquire a coveted piece of Glen Waverley real estate in the absolute epicentre of one of Melbourne's most dynamic suburban activity centres.

Key Highlights of this Premier Opportunity:

• Anchored by a Secure, Long-Term Tenant Fully leased to the established JRW Property International Pty Ltd on a 5-year lease with two additional 5-year options, offering outstanding income security through to 2039.

• 'Set-and-Forget' Income with Guaranteed Annual Growth Returning a significant net income of $122,055 per annum*(As of 31/10/2025) + GST, supported by fixed 3% annual rent increases for a secure, passive, and growing income stream.

• Irreplaceable Location in a Tightly Held Precinct Positioned on a prime 190sqm* Commercial 1 Zone (C1Z) landholding directly opposite the renowned The Glen Shopping Centre and the bustling Glen Waverley transport interchange.

• Future-Proofed by Unprecedented Infrastructure Investment Located at the doorstep of the future Suburban Rail Loop (SRL) station, a city-shaping project set to deliver thousands of new patrons to the area daily and solidify this location as a key commercial hub.

• Substantial Two-Level Freehold Building A versatile 182.5sqm* building with prime ground-floor exposure and first-floor offices, ideal for the current tenant and adaptable for a range of future uses (STCA).

• Significant Future Upside (STCA) Opportunity to improve and extend the current building envelope to capitalise on the exciting growth of the Glen Waverley Activity Centre (GWAC).

• Rare On-Site Parking Featuring secure rear access with on-title parking for three vehicles-an invaluable asset in this high-density precinct.

The Opportunity:

Freehold assets of this calibre are seldom available. This is the definition of a 'set-and-forget' investment, providing immediate, secure income with guaranteed growth. The strategic C1Z landholding presents outstanding future potential for value-add initiatives or development (STCA)

in a precinct with a proven track record of multi-level success.

Surrounded by national retailers, major banks, and a thriving dining and entertainment scene, 73 Railway Parade North is perfectly positioned to leverage the ongoing evolution and government-backed expansion of Glen Waverley.

For Sale by Public Auction: Wednesday, 19th November 2025 at 1:00 PM (AEDT) on-site.

For further information or to arrange an exclusive inspection, please contact the selling agents:

RYAN TRICKEY

0400 380 438

[email protected]

WILL JONAS

0422 883 011

[email protected]

RWC Glen Waverley

*Approximately

Remember to mention you found this property on CommercialReady

Read More
Tenanted Investment

Finance Calculator

73 Railway Parade North, Glen Waverley, VIC, 3150

Secure/no obligation

Step 1

Loan Variables

Adjust the inputs to explore your indicative finance options.

Estimated Purchase Price: $x,xxx,xxx
What you intend to pay for the property
Your Contribution: $x,xxx,xxx
The amount you’re investing
LVR: $x,xxx,xxx
Loan to Value Ratio

Estimated Purchase Price:

What you intend to pay for the property

$

Your Contribution:

The amount you’re investing

Min: 0% - Max: 90% of purchase price.

$

LVR:

Loan to Value Ratio

Min: 10% - Max: 100% of purchase price.

%

Loan Analysis

Estimated Purchase Price:
Your expected purchase price. Final lender valuation may differ and will affect LVR and borrowing.
$x,xxx,xxx
Your Contribution:
Your funds toward the purchase (savings/equity/gift). Does not include costs like duty, legals or LMI.
$xxx,xxx
Loan to Value Ratio:
Calculated as Loan ÷ Price. Guidance only. Lender policy caps vary by property type, location and borrower profile.
xx%
Loan Amount:
Estimated loan based on your inputs. Excludes fees, LMI and costs. Subject to credit assessment and valuation.
in full report
Interest Only: Monthly Repayments
Estimate using interest-only at 5.85% p.a. Excludes fees. Rates can change without notice.
in full report
Principal & Interest: Monthly Repayments
Estimate at 5.85% p.a. over 15 years, monthly compounding. Excludes fees/LMI. Rates may change.
in full report
Stamp Duty: victoria
Indicative rate for victoria. Concessions/exemptions (e.g., first home) may apply and change the amount.
in full report
Stamp Duty Cost:
Estimate only. Check SRO victoria for the latest rules and any concessions that may reduce this figure.
in full report

Property Location of 73 Railway Parade North, Glen Waverley, VIC, 3150

One moment please.

Retrieving map...

73 Railway Parade North, Glen Waverley, VIC, 3150 Glen Waverley
calculator-icon Yield Calculator
calcultor-icon Yield Calculator