Watch Watch
Your home of Commercial Ready videos
Watch Watch
Back
Sold Check

50 The Boulevarde, Strathfield, NSW, 2135

+12 Photos
/
Images
Close

50 The Boulevarde, Strathfield, NSW, 2135

Strathfield

×
Sold Check
+14 Photos

50 The Boulevarde, Strathfield, NSW, 2135

Strathfield

SOLD
50 The Boulevarde, Strathfield, NSW, 2135

50 The Boulevarde, Strathfield, NSW, 2135

Properties / Sold / New South Wales / Strathfield
Tenanted Investment
Selling Method
SOLD
Selling Details
SOLD
Land Area
214 m² (*approx)
Floor Area
539 m² (*approx)
Property Type
Offices
Terms
Additional 5 year option
Est. Income
$365,650 p/a
Car Spaces
6
Show All
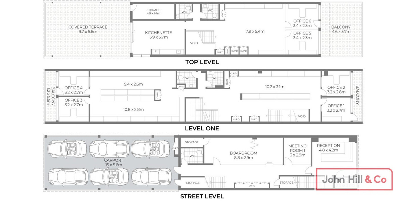
SECURE COMMERCIAL INVESTMENT | BLUE RIBBON LOCATION

John Hill & Co is pleased to present an exceptional commercial investment opportunity in the heart of Strathfield. Available for the first time in over 50 years, this architecturally designed, three-level, freestanding building is situated in the vibrant Strathfield CBD, making it an ideal long-term investment.

Leased until 2028 to a national, ASX listed tenant, with an additional 5 year option, this property offers both potential and security for the future.

Key Features:

* 539 sqm "A" grade corporate office space
* Secure car park with a 6 vehicle capacity
* Stunning reception area on ground level
* Mix of open plan office, meeting rooms and boardroom
* Modern, sleek design with custom joinery
* High internal ceilings with an abundance of natural light
* Large covered outdoor entertaining terrace
* Extensive renovation recently completed throughout
* Fully fitted eat-in staff kitchen & 5 bathrooms
* Net Annual Rental $365,650

For more information contact Rebecca or Sam

AUCTION ONSITE
Saturday 7 September 2024 at 9.30am

Read More
Tenanted Investment
Tenanted Investment

50 The Boulevarde Investment Summary

Property Type
Offices
Est. Income
$365,650 p/a
Terms
Additional 5 year option
Land Area
214 m² (*approx)
Floor Area
539 m² (*approx)
Car Spaces
6
Selling Method
SOLD
Auction Date
7 Sep 2024 09:30AM
Selling Details
SOLD

Investment Highlights

SECURE COMMERCIAL INVESTMENT | BLUE RIBBON LOCATION

John Hill & Co is pleased to present an exceptional commercial investment opportunity in the heart of Strathfield. Available for the first time in over 50 years, this architecturally designed, three-level, freestanding building is situated in the vibrant Strathfield CBD, making it an ideal long-term investment.

Leased until 2028 to a national, ASX listed tenant, with an additional 5 year option, this property offers both potential and security for the future.

Key Features:

* 539 sqm "A" grade corporate office space
* Secure car park with a 6 vehicle capacity
* Stunning reception area on ground level
* Mix of open plan office, meeting rooms and boardroom
* Modern, sleek design with custom joinery
* High internal ceilings with an abundance of natural light
* Large covered outdoor entertaining terrace
* Extensive renovation recently completed throughout
* Fully fitted eat-in staff kitchen & 5 bathrooms
* Net Annual Rental $365,650

For more information contact Rebecca or Sam

AUCTION ONSITE
Saturday 7 September 2024 at 9.30am

Read More
Tenanted Investment

Finance Calculator

50 The Boulevarde, Strathfield, NSW, 2135

Secure/no obligation

Step 1

Loan Variables

Adjust the inputs to explore your indicative finance options.

Estimated Purchase Price: $x,xxx,xxx
What you intend to pay for the property
Your Contribution: $x,xxx,xxx
The amount you’re investing
LVR: $x,xxx,xxx
Loan to Value Ratio

Estimated Purchase Price:

What you intend to pay for the property

$

Your Contribution:

The amount you’re investing

Min: 0% - Max: 90% of purchase price.

$

LVR:

Loan to Value Ratio

Min: 10% - Max: 100% of purchase price.

%

Loan Analysis

Estimated Purchase Price:
Your expected purchase price. Final lender valuation may differ and will affect LVR and borrowing.
$x,xxx,xxx
Your Contribution:
Your funds toward the purchase (savings/equity/gift). Does not include costs like duty, legals or LMI.
$xxx,xxx
Loan to Value Ratio:
Calculated as Loan ÷ Price. Guidance only. Lender policy caps vary by property type, location and borrower profile.
xx%
Loan Amount:
Estimated loan based on your inputs. Excludes fees, LMI and costs. Subject to credit assessment and valuation.
in full report
Interest Only: Monthly Repayments
Estimate using interest-only at 5.85% p.a. Excludes fees. Rates can change without notice.
in full report
Principal & Interest: Monthly Repayments
Estimate at 5.85% p.a. over 15 years, monthly compounding. Excludes fees/LMI. Rates may change.
in full report
Stamp Duty: new south wales
Indicative rate for new south wales. Concessions/exemptions (e.g., first home) may apply and change the amount.
in full report
Stamp Duty Cost:
Estimate only. Check SRO new south wales for the latest rules and any concessions that may reduce this figure.
in full report

Property Location of 50 The Boulevarde, Strathfield, NSW, 2135

One moment please.

Retrieving map...

50 The Boulevarde, Strathfield, NSW, 2135 Strathfield
calculator-icon Yield Calculator
calcultor-icon Yield Calculator