Watch Watch
Your home of Commercial Ready videos
Watch Watch
Back
Sold Check

5 Squires Way, Croydon South, VIC, 3136

+11 Photos
/
Images
Video
Close

5 Squires Way, Croydon South, VIC, 3136

Croydon South

×
Sold Check
+13 Photos

5 Squires Way, Croydon South, VIC, 3136

Croydon South

SOLD
5 Squires Way, Croydon South, VIC, 3136

5 Squires Way, Croydon South, VIC, 3136

Properties / Sold / Victoria / Croydon South
Tenanted Investment
Selling Method
EOI
Land Area
3,920 m² (*approx)
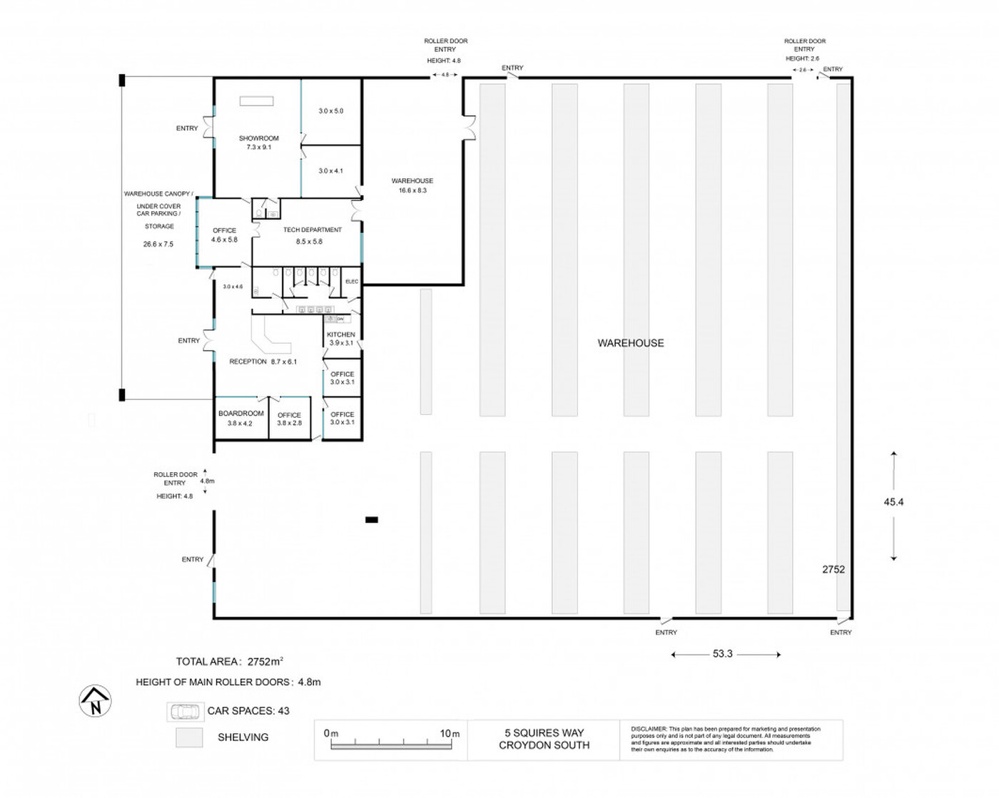
Floor Area
2752 m² (*approx)
Property Type
Industrial, Offices
Sub-type
Office/Warehouse
Terms
7 years from the 1st May 2021
Est. Income
$319,426 p/a
Car Spaces
43
Show All
Take Your Investment to a New Height
  • Non-retail lease
  • Current rent $319,425.96 net pa
  • Modern 2,752 sqm office warehouse

GormanKelly is pleased to exclusively offer 5 Squires Way, Croydon South for Sale by Expressions of Interest, closing Wednesday 10th April 2024 at 2pm.

Lease

• 7 years from the 1st May 2021

• Current rent - $319,425.96 per annum net plus GST (land tax paid by tenant under a single holding basis)

• Option 2 x 3 years with annual increases at 3% and fair market review at the option

• Personal guarantee and 4-month bank guarantee bond

• Non-retail lease used by a 3PL operator established in 1983 as an independent parcel carrier, providing excellent service around the Melbourne Metro area

Building

• Modern 2,752 sqm office warehouse located in a prestigious industrial estate

• Titled land area of 3,920 sqm approx.

• Fully refurbished in recent years offering modern office accommodation

• 11m high approx. warehouse with full sprinkler system

• Large canopy for all-weather protection

• 3 access roller doors

• Generous car parking – 43

Area

• Located in the well sought-after Merrindale Estate

• Close proximity to main arterials

• Multiple cafés within easy walking distance

• Wide road networks and street parking.

PROPERTY VIDEO: https://youtu.be/bHzt0dPCYdA

Tenant info: https://www.swdwarehousing.com.au/

To obtain an Information Memorandum, Contract of Sale, and/or an Expression of Interest form or to arrange an inspection, please contact Jason Beveridge today!

Remember to mention you found this property on CommercialReady

Read More
Tenanted Investment
Tenanted Investment

5 Squires Way Investment Summary

Property Type
Industrial, Offices
Sub-type
Office/Warehouse
Est. Income
$319,426 p/a
Terms
7 years from the 1st May 2021
Land Area
3,920 m² (*approx)
Floor Area
2752 m² (*approx)
Car Spaces
43
Selling Method
EOI
EOI Closing Date
10 Apr 2024 02:00PM

Investment Highlights

Take Your Investment to a New Height
  • Non-retail lease
  • Current rent $319,425.96 net pa
  • Modern 2,752 sqm office warehouse

GormanKelly is pleased to exclusively offer 5 Squires Way, Croydon South for Sale by Expressions of Interest, closing Wednesday 10th April 2024 at 2pm.

Lease

• 7 years from the 1st May 2021

• Current rent - $319,425.96 per annum net plus GST (land tax paid by tenant under a single holding basis)

• Option 2 x 3 years with annual increases at 3% and fair market review at the option

• Personal guarantee and 4-month bank guarantee bond

• Non-retail lease used by a 3PL operator established in 1983 as an independent parcel carrier, providing excellent service around the Melbourne Metro area

Building

• Modern 2,752 sqm office warehouse located in a prestigious industrial estate

• Titled land area of 3,920 sqm approx.

• Fully refurbished in recent years offering modern office accommodation

• 11m high approx. warehouse with full sprinkler system

• Large canopy for all-weather protection

• 3 access roller doors

• Generous car parking – 43

Area

• Located in the well sought-after Merrindale Estate

• Close proximity to main arterials

• Multiple cafés within easy walking distance

• Wide road networks and street parking.

PROPERTY VIDEO: https://youtu.be/bHzt0dPCYdA

Tenant info: https://www.swdwarehousing.com.au/

To obtain an Information Memorandum, Contract of Sale, and/or an Expression of Interest form or to arrange an inspection, please contact Jason Beveridge today!

Remember to mention you found this property on CommercialReady

Read More
Tenanted Investment

Finance Calculator

5 Squires Way, Croydon South, VIC, 3136

Secure/no obligation

Step 1

Loan Variables

Adjust the inputs to explore your indicative finance options.

Estimated Purchase Price: $x,xxx,xxx
What you intend to pay for the property
Your Contribution: $x,xxx,xxx
The amount you’re investing
LVR: $x,xxx,xxx
Loan to Value Ratio

Estimated Purchase Price:

What you intend to pay for the property

$

Your Contribution:

The amount you’re investing

Min: 0% - Max: 90% of purchase price.

$

LVR:

Loan to Value Ratio

Min: 10% - Max: 100% of purchase price.

%

Loan Analysis

Estimated Purchase Price:
Your expected purchase price. Final lender valuation may differ and will affect LVR and borrowing.
$x,xxx,xxx
Your Contribution:
Your funds toward the purchase (savings/equity/gift). Does not include costs like duty, legals or LMI.
$xxx,xxx
Loan to Value Ratio:
Calculated as Loan ÷ Price. Guidance only. Lender policy caps vary by property type, location and borrower profile.
xx%
Loan Amount:
Estimated loan based on your inputs. Excludes fees, LMI and costs. Subject to credit assessment and valuation.
in full report
Interest Only: Monthly Repayments
Estimate using interest-only at 5.85% p.a. Excludes fees. Rates can change without notice.
in full report
Principal & Interest: Monthly Repayments
Estimate at 5.85% p.a. over 15 years, monthly compounding. Excludes fees/LMI. Rates may change.
in full report
Stamp Duty: victoria
Indicative rate for victoria. Concessions/exemptions (e.g., first home) may apply and change the amount.
in full report
Stamp Duty Cost:
Estimate only. Check SRO victoria for the latest rules and any concessions that may reduce this figure.
in full report

Property Location of 5 Squires Way, Croydon South, VIC, 3136

One moment please.

Retrieving map...

5 Squires Way, Croydon South, VIC, 3136 Croydon South
calculator-icon Yield Calculator
calcultor-icon Yield Calculator