Watch Watch
Your home of Commercial Ready videos
Watch Watch
Back
Sold Check

5, 28 Silkwood Rise, Carrum Downs, VIC, 3201

+11 Photos
/
Images
Close

5, 28 Silkwood Rise, Carrum Downs, VIC, 3201

Carrum Downs

×
Sold Check
+13 Photos

5, 28 Silkwood Rise, Carrum Downs, VIC, 3201

Carrum Downs

SOLD
5, 28 Silkwood Rise, Carrum Downs, VIC, 3201

5, 28 Silkwood Rise, Carrum Downs, VIC, 3201

Properties / Sold / Victoria / Carrum Downs
Tenanted Investment
Selling Method
EOI
Selling Details
Contact Agent
Land Area
1,058 m² (*approx)
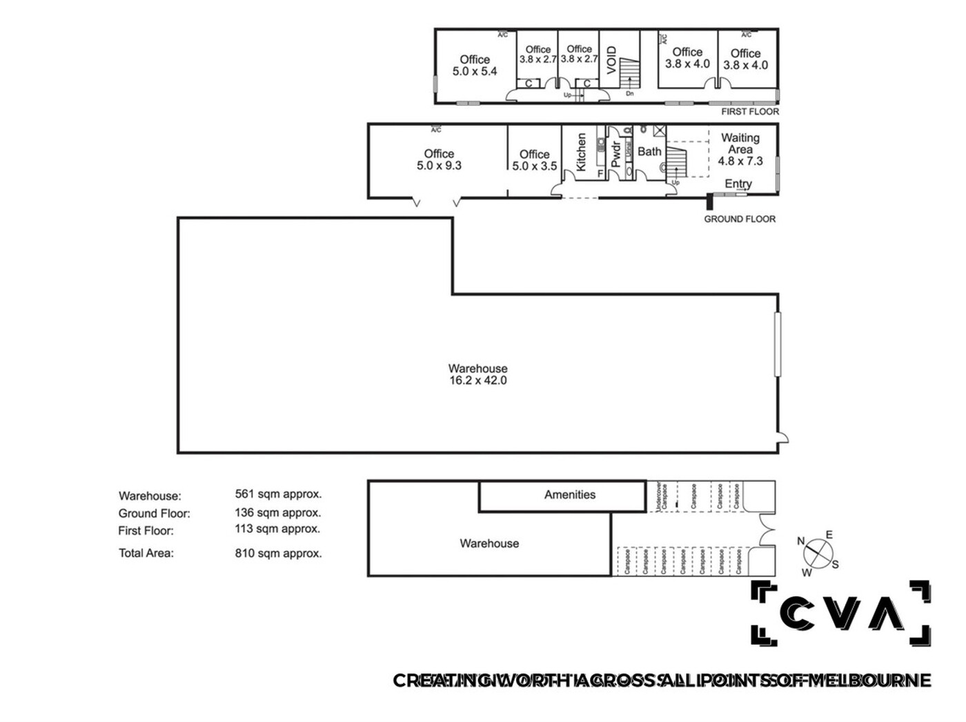
Floor Area
810 m² (*approx)
Property Type
Industrial
Sub-type
Office/Warehouse
Terms
5 + 5 + 5 years
Est. Income
$110,000 p/a
Fully Leased
Signversal
Zone
Industrial 1 Zone
Show All
INDUSTRIAL INVESTORS: THIS IS YOUR SIGN.

For sale via Expressions of Interest closing 4th December 2024 at 12.00PM

The next & final Open for Inspection is Thursday 28th November at 1.00pm - 1.30pm. Please contact agent to register your attendance

POINT OF INTEREST:

If you’re in the market for a 1,058 sqm* plot of Carrum Downs land with an 810 sqm* building to generate high-returning income, this is an opportunity you want to act fast on.

Securely leased to Signversal Pty Ltd since 2014, the reputable print and signage company brings in a solid rental income of $110,000 per annum and recently renewed its lease agreement for another 5 + 5 + 5 years. There is also a gigantic signage opportunity on the rear of the building for millions of passing cars on east link annually. 

Accessibility is spelled with a capital A in Carrum Downs: literally, thanks to the East Link that connects you to the CBD and Melbourne’s Peninsula that practically runs through your backyard, and figuratively, with the thriving industrial precinct being a compelling investment for anyone looking to capitalise on this high-yielding asset class.

- Total building area: 810 sqm*

- Land area: 1,058 sqm*

- Leased to Signversal since 2014.

- Current Income: $110,000 per annum.

- Lease Term: 5 + 5 + 5 years

- Current term commencement: 1st November 2024

- Industrial 1 zone.

- 10 on-site car spaces.

- Huge signage opportunity to East Link on rear of building. 

- 1.6 km* from EastLink.

- 35 km* from Melbourne CBD.

POINT OF VIEW:

This property combines the best of high-yielding industrial investments with the stability of a long-term tenant in place. Seasoned and first-time investors, this is your sign.   

*Approx.

Pricing excludes GST

Remember to mention you found this property on CommercialReady

Read More
Tenanted Investment
Tenanted Investment

28 Silkwood Rise Investment Summary

Property Type
Industrial
Sub-type
Office/Warehouse
Est. Income
$110,000 p/a
Tenant
Signversal
Terms
5 + 5 + 5 years
Land Area
1,058 m² (*approx)
Floor Area
810 m² (*approx)
Zone
Industrial 1 Zone
Selling Method
EOI
EOI Closing Date
4 Dec 2024 12:00PM
Selling Details
Contact Agent

Investment Highlights

INDUSTRIAL INVESTORS: THIS IS YOUR SIGN.

For sale via Expressions of Interest closing 4th December 2024 at 12.00PM

The next & final Open for Inspection is Thursday 28th November at 1.00pm - 1.30pm. Please contact agent to register your attendance

POINT OF INTEREST:

If you’re in the market for a 1,058 sqm* plot of Carrum Downs land with an 810 sqm* building to generate high-returning income, this is an opportunity you want to act fast on.

Securely leased to Signversal Pty Ltd since 2014, the reputable print and signage company brings in a solid rental income of $110,000 per annum and recently renewed its lease agreement for another 5 + 5 + 5 years. There is also a gigantic signage opportunity on the rear of the building for millions of passing cars on east link annually. 

Accessibility is spelled with a capital A in Carrum Downs: literally, thanks to the East Link that connects you to the CBD and Melbourne’s Peninsula that practically runs through your backyard, and figuratively, with the thriving industrial precinct being a compelling investment for anyone looking to capitalise on this high-yielding asset class.

- Total building area: 810 sqm*

- Land area: 1,058 sqm*

- Leased to Signversal since 2014.

- Current Income: $110,000 per annum.

- Lease Term: 5 + 5 + 5 years

- Current term commencement: 1st November 2024

- Industrial 1 zone.

- 10 on-site car spaces.

- Huge signage opportunity to East Link on rear of building. 

- 1.6 km* from EastLink.

- 35 km* from Melbourne CBD.

POINT OF VIEW:

This property combines the best of high-yielding industrial investments with the stability of a long-term tenant in place. Seasoned and first-time investors, this is your sign.   

*Approx.

Pricing excludes GST

Remember to mention you found this property on CommercialReady

Read More
Tenanted Investment

Finance Calculator

5, 28 Silkwood Rise, Carrum Downs, VIC, 3201

Secure/no obligation

Step 1

Loan Variables

Adjust the inputs to explore your indicative finance options.

Estimated Purchase Price: $x,xxx,xxx
What you intend to pay for the property
Your Contribution: $x,xxx,xxx
The amount you’re investing
LVR: $x,xxx,xxx
Loan to Value Ratio

Estimated Purchase Price:

What you intend to pay for the property

$

Your Contribution:

The amount you’re investing

Min: 0% - Max: 90% of purchase price.

$

LVR:

Loan to Value Ratio

Min: 10% - Max: 100% of purchase price.

%

Loan Analysis

Estimated Purchase Price:
Your expected purchase price. Final lender valuation may differ and will affect LVR and borrowing.
$x,xxx,xxx
Your Contribution:
Your funds toward the purchase (savings/equity/gift). Does not include costs like duty, legals or LMI.
$xxx,xxx
Loan to Value Ratio:
Calculated as Loan ÷ Price. Guidance only. Lender policy caps vary by property type, location and borrower profile.
xx%
Loan Amount:
Estimated loan based on your inputs. Excludes fees, LMI and costs. Subject to credit assessment and valuation.
$xxx,xxx
Interest Only: Monthly Repayments
Estimate using interest-only at 5.85% p.a. Excludes fees. Rates can change without notice.
in full report
Principal & Interest: Monthly Repayments
Estimate at 5.85% p.a. over 15 years, monthly compounding. Excludes fees/LMI. Rates may change.
in full report
Stamp Duty: victoria
Indicative rate for victoria. Concessions/exemptions (e.g., first home) may apply and change the amount.
in full report
Stamp Duty Cost:
Estimate only. Check SRO victoria for the latest rules and any concessions that may reduce this figure.
in full report

Property Location of 5, 28 Silkwood Rise, Carrum Downs, VIC, 3201

One moment please.

Retrieving map...

calculator-icon Yield Calculator
calcultor-icon Yield Calculator