Watch Watch
Your home of Commercial Ready videos
Watch Watch
Back

40 Highbury Road, North Kellyville, NSW, 2155

+14 Photos
/
Images
Close

40 Highbury Road, North Kellyville, NSW, 2155

North Kellyville

×
+16 Photos

40 Highbury Road, North Kellyville, NSW, 2155

North Kellyville

40 Highbury Road, North Kellyville, NSW, 2155

40 Highbury Road, North Kellyville, NSW, 2155

Properties / Buy / New South Wales / North Kellyville
Tenanted Investment
Selling Method
For Sale
Selling Details
Contact Agent
Land Area
635 sqm (*approx)
Property Type
Other
Sub-type
Block of Units / Flats
Car Spaces
10
Show All
Fully Leased Block of 10 Apartments
  • Guaranteed Income
  • High Growth Suburb

This block of ten apartments in North Kellyville presents a rare opportunity to secure a fully leased residential asset with strong in-place income.

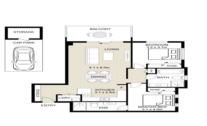
Comprising 10 x 2-bedroom apartments with secure 10 space basement parking, the property benefits from modern construction, high tenant demand, and an efficient building layout suited to long-term hold and future growth.

Set within a high-growth North West corridor, the site offers compelling fundamentals for investors, with surrounding density, established infrastructure, and continued population growth supporting future uplift.

Located moments to North Kellyville Square (Woolworths), North Kellyville Public School, just 8 minutes to Kellyville Metro Station and 10 minutes to Rouse Hill Town Centre.

Key Highlights:

• Fully leased residential building - 10 apartments
• Strong holding income with immediate cash flow
• Secure basement parking
• Modern construction - low maintenance asset
• High-growth North Kellyville location
• Walk to retail, schools, and amenities

For further information, please contact exclusive sales agents from Emerald City Property.

Read More
Tenanted Investment
Tenanted Investment

40 Highbury Road Investment Summary

Property Type
Other
Sub-type
Block of Units / Flats
Land Area
635 sqm (*approx)
Car Spaces
10
Selling Method
For Sale
Selling Details
Contact Agent

Investment Highlights

Fully Leased Block of 10 Apartments
  • Guaranteed Income
  • High Growth Suburb

This block of ten apartments in North Kellyville presents a rare opportunity to secure a fully leased residential asset with strong in-place income.

Comprising 10 x 2-bedroom apartments with secure 10 space basement parking, the property benefits from modern construction, high tenant demand, and an efficient building layout suited to long-term hold and future growth.

Set within a high-growth North West corridor, the site offers compelling fundamentals for investors, with surrounding density, established infrastructure, and continued population growth supporting future uplift.

Located moments to North Kellyville Square (Woolworths), North Kellyville Public School, just 8 minutes to Kellyville Metro Station and 10 minutes to Rouse Hill Town Centre.

Key Highlights:

• Fully leased residential building - 10 apartments
• Strong holding income with immediate cash flow
• Secure basement parking
• Modern construction - low maintenance asset
• High-growth North Kellyville location
• Walk to retail, schools, and amenities

For further information, please contact exclusive sales agents from Emerald City Property.

Read More
Tenanted Investment

Finance Calculator

40 Highbury Road, North Kellyville, NSW, 2155

Secure/no obligation

Step 1

Loan Variables

Adjust the inputs to explore your indicative finance options.

Estimated Purchase Price: $x,xxx,xxx
What you intend to pay for the property
Your Contribution: $x,xxx,xxx
The amount you’re investing
LVR: $x,xxx,xxx
Loan to Value Ratio

Estimated Purchase Price:

What you intend to pay for the property

$

Your Contribution:

The amount you’re investing

Min: 0% - Max: 90% of purchase price.

$

LVR:

Loan to Value Ratio

Min: 10% - Max: 100% of purchase price.

%

Loan Analysis

Estimated Purchase Price:
Your expected purchase price. Final lender valuation may differ and will affect LVR and borrowing.
$x,xxx,xxx
Your Contribution:
Your funds toward the purchase (savings/equity/gift). Does not include costs like duty, legals or LMI.
$xxx,xxx
Loan to Value Ratio:
Calculated as Loan ÷ Price. Guidance only. Lender policy caps vary by property type, location and borrower profile.
xx%
Loan Amount:
Estimated loan based on your inputs. Excludes fees, LMI and costs. Subject to credit assessment and valuation.
in full report
Interest Only: Monthly Repayments
Estimate using interest-only at 5.85% p.a. Excludes fees. Rates can change without notice.
in full report
Principal & Interest: Monthly Repayments
Estimate at 5.85% p.a. over 15 years, monthly compounding. Excludes fees/LMI. Rates may change.
in full report
Stamp Duty: new south wales
Indicative rate for new south wales. Concessions/exemptions (e.g., first home) may apply and change the amount.
in full report
Stamp Duty Cost:
Estimate only. Check SRO new south wales for the latest rules and any concessions that may reduce this figure.
in full report

Property Location of 40 Highbury Road, North Kellyville, NSW, 2155

One moment please.

Retrieving map...

40 Highbury Road, North Kellyville, NSW, 2155 North Kellyville
Enquire
calculator-icon Yield Calculator
calcultor-icon Yield Calculator