Watch Watch
Your home of Commercial Ready videos
Watch Watch
Back
Sold Check

388 Bay Street, Brighton, VIC, 3186

+19 Photos
/
Images
Close

388 Bay Street, Brighton, VIC, 3186

Brighton

×
Sold Check
+21 Photos

388 Bay Street, Brighton, VIC, 3186

Brighton

SOLD
388 Bay Street, Brighton, VIC, 3186

388 Bay Street, Brighton, VIC, 3186

Properties / Sold / Victoria / Brighton
Vacant Possession
Selling Method
Expression of Interest
Selling Details
Closing Tuesday 20th June at 3pm
Land Area
760 m² (*approx)
Floor Area
305 m² (*approx)
Property Type
Health/Medical, Land
Show All
Landmark Opportunity In Major Activity Centre
  • Opposite Coles Supermarket
  • High Exposure Location
  • Invest Or Occupy

Inspect by registered appointment Wednesday 4th October at 11am - 11.30am or Wednesday 11th October at 11am - 11.30am. Please contact Mark Talbot on 0409 222 411 or Julian Augustini on 0418 558 408 to register to inspect.

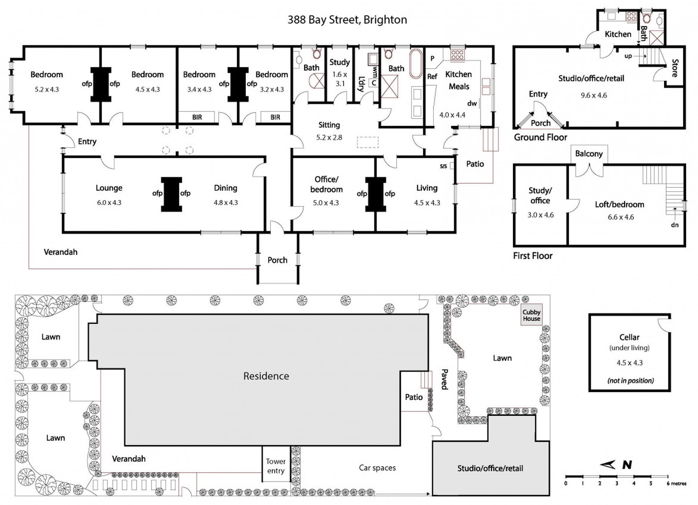
Fitzroys is delighted to offer for sale this landmark corner opportunity located at the prominent and bustling intersection of Bay and Male Streets in the highly sought after Bayside suburb of Brighton.

This blue-ribbon property offers Investors and Owner Occupier buyers a rare opportunity to acquire an immaculately presented Victorian residence (with separate additional retail accommodation ) with the flexibility to re-configure and offer to the leasing market or alternatively occupy the premises.

The key attributes of this opportunity include:

- Substantial land area of 760sqm* with a combined street frontage of over 63 metres.

- Total building area of 305sqm* comprising of an immaculately presented Victorian residence plus separate fully self-contained retail/office/studio entered from Male Street.

- Zoning: General Residential Zone – Schedule 2 (GRZ2).

- Suitable for a variety of uses including medical, allied health, home-based business and more (STCA).

- Excellent public car parking options available with undercover parking opposite within Coles.

- Proximity to a plethora of popular national and local operators including Coles, Chemist Warehouse, Aus Post, Flight Centre, Palace Cinemas, Hotel Brighton, Mr and Mrs P, Rocksalt and more

- Situated within a rapidly developing precinct of Bay Street which includes a variety of retail, office, medical and residential offerings.

- Easy access to the CBD via Nepean Highway and walking distance to North Brighton Train Station.

388 Bay Street, Brighton presents a rare opportunity to acquire a high exposure corner property located within blue ribbon suburb of Brighton with the flexibility to occupy or lease out to a variety of uses (STCA).

Agent in conjunction: Hodges Brighton - Julian Augustini 0418 558 408

*approx.

Remember to mention you found this property on CommercialReady

Read More
Vacant Possession
Vacant Possession

388 Bay Street Investment Summary

Property Type
Health/Medical, Land
Land Area
760 m² (*approx)
Floor Area
305 m² (*approx)
Selling Method
Expression of Interest
Selling Details
Closing Tuesday 20th June at 3pm

Investment Highlights

Landmark Opportunity In Major Activity Centre
  • Opposite Coles Supermarket
  • High Exposure Location
  • Invest Or Occupy

Inspect by registered appointment Wednesday 4th October at 11am - 11.30am or Wednesday 11th October at 11am - 11.30am. Please contact Mark Talbot on 0409 222 411 or Julian Augustini on 0418 558 408 to register to inspect.

Fitzroys is delighted to offer for sale this landmark corner opportunity located at the prominent and bustling intersection of Bay and Male Streets in the highly sought after Bayside suburb of Brighton.

This blue-ribbon property offers Investors and Owner Occupier buyers a rare opportunity to acquire an immaculately presented Victorian residence (with separate additional retail accommodation ) with the flexibility to re-configure and offer to the leasing market or alternatively occupy the premises.

The key attributes of this opportunity include:

- Substantial land area of 760sqm* with a combined street frontage of over 63 metres.

- Total building area of 305sqm* comprising of an immaculately presented Victorian residence plus separate fully self-contained retail/office/studio entered from Male Street.

- Zoning: General Residential Zone – Schedule 2 (GRZ2).

- Suitable for a variety of uses including medical, allied health, home-based business and more (STCA).

- Excellent public car parking options available with undercover parking opposite within Coles.

- Proximity to a plethora of popular national and local operators including Coles, Chemist Warehouse, Aus Post, Flight Centre, Palace Cinemas, Hotel Brighton, Mr and Mrs P, Rocksalt and more

- Situated within a rapidly developing precinct of Bay Street which includes a variety of retail, office, medical and residential offerings.

- Easy access to the CBD via Nepean Highway and walking distance to North Brighton Train Station.

388 Bay Street, Brighton presents a rare opportunity to acquire a high exposure corner property located within blue ribbon suburb of Brighton with the flexibility to occupy or lease out to a variety of uses (STCA).

Agent in conjunction: Hodges Brighton - Julian Augustini 0418 558 408

*approx.

Remember to mention you found this property on CommercialReady

Read More

Finance Calculator

388 Bay Street, Brighton, VIC, 3186

Secure/no obligation

Step 1

Loan Variables

Adjust the inputs to explore your indicative finance options.

Estimated Purchase Price: $x,xxx,xxx
What you intend to pay for the property
Your Contribution: $x,xxx,xxx
The amount you’re investing
LVR: $x,xxx,xxx
Loan to Value Ratio

Estimated Purchase Price:

What you intend to pay for the property

$

Your Contribution:

The amount you’re investing

Min: 0% - Max: 90% of purchase price.

$

LVR:

Loan to Value Ratio

Min: 10% - Max: 100% of purchase price.

%

Loan Analysis

Estimated Purchase Price:
Your expected purchase price. Final lender valuation may differ and will affect LVR and borrowing.
$x,xxx,xxx
Your Contribution:
Your funds toward the purchase (savings/equity/gift). Does not include costs like duty, legals or LMI.
$xxx,xxx
Loan to Value Ratio:
Calculated as Loan ÷ Price. Guidance only. Lender policy caps vary by property type, location and borrower profile.
xx%
Loan Amount:
Estimated loan based on your inputs. Excludes fees, LMI and costs. Subject to credit assessment and valuation.
in full report
Interest Only: Monthly Repayments
Estimate using interest-only at 5.85% p.a. Excludes fees. Rates can change without notice.
in full report
Principal & Interest: Monthly Repayments
Estimate at 5.85% p.a. over 15 years, monthly compounding. Excludes fees/LMI. Rates may change.
in full report
Stamp Duty: victoria
Indicative rate for victoria. Concessions/exemptions (e.g., first home) may apply and change the amount.
in full report
Stamp Duty Cost:
Estimate only. Check SRO victoria for the latest rules and any concessions that may reduce this figure.
in full report

Property Location of 388 Bay Street, Brighton, VIC, 3186

One moment please.

Retrieving map...

388 Bay Street, Brighton, VIC, 3186 Brighton
Fitzroys
Fitzroys
Level 27, 360 Collins Street, Melbourne VIC 3000
View Agency Profile
calculator-icon Yield Calculator
calcultor-icon Yield Calculator