Watch Watch
Your home of Commercial Ready videos
Watch Watch
Back

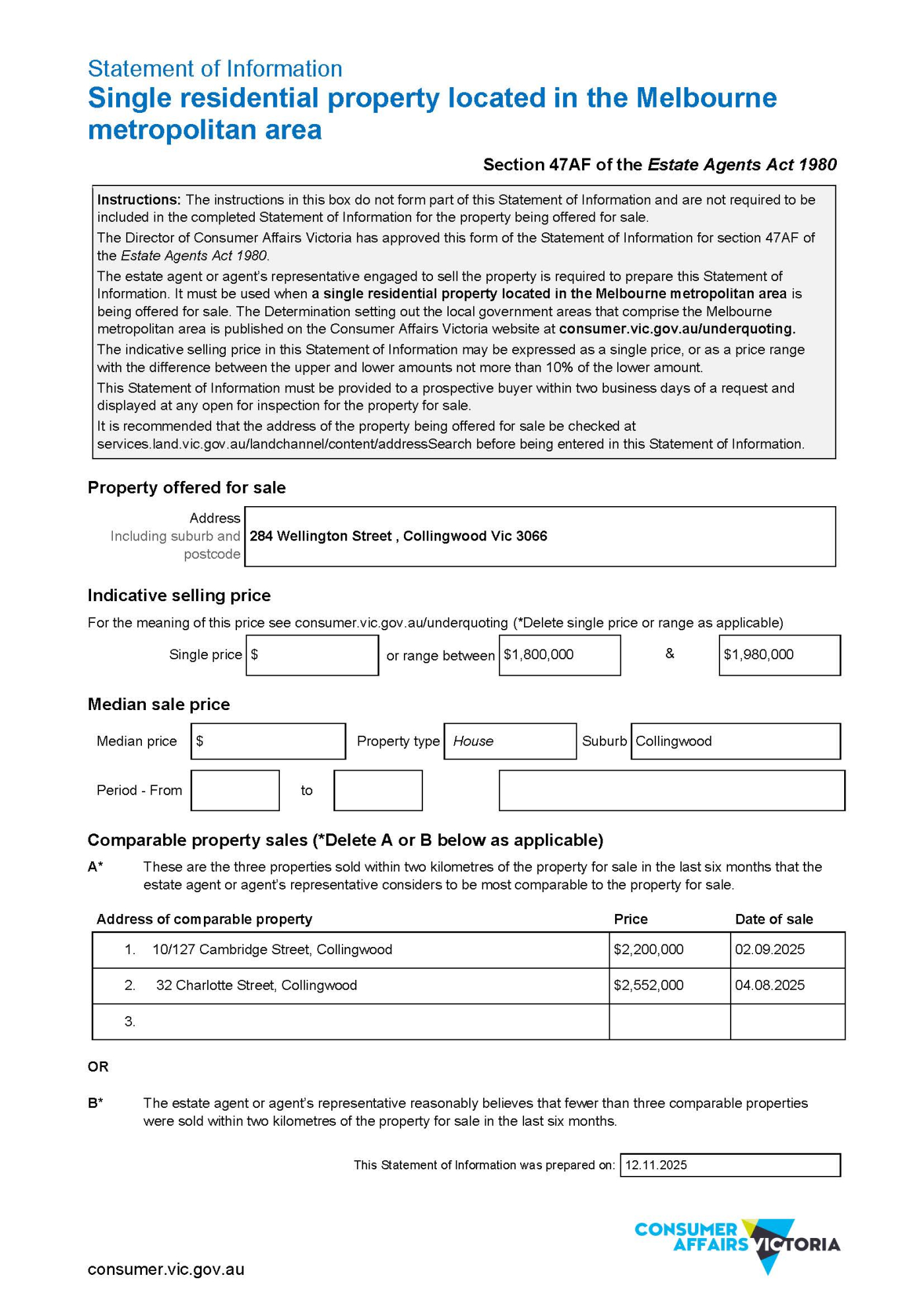
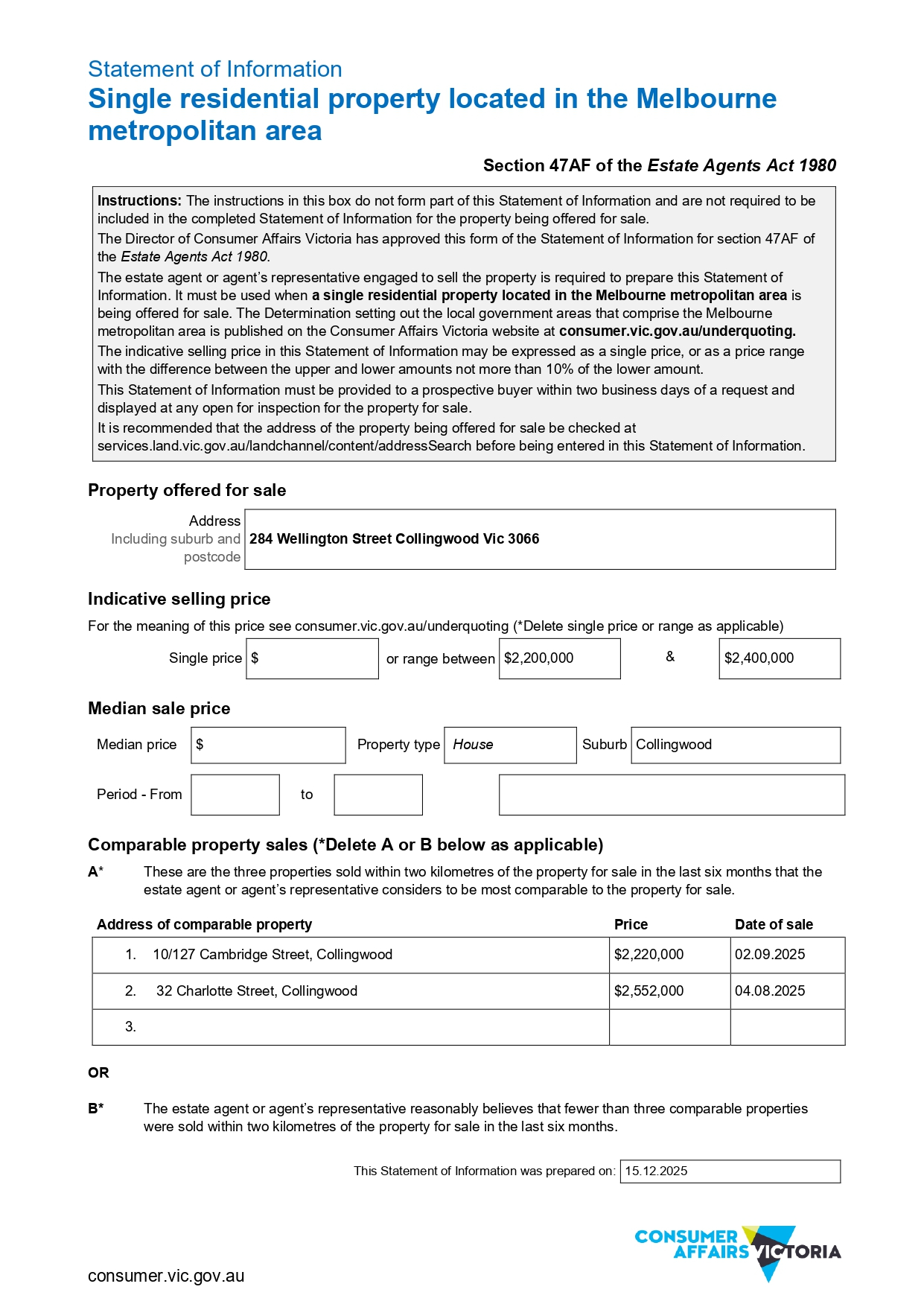
284 Wellington Street, Collingwood, VIC, 3066

+18 Photos
/
Images
Video
Close

284 Wellington Street, Collingwood, VIC, 3066

Collingwood

×
+20 Photos

284 Wellington Street, Collingwood, VIC, 3066

Collingwood

284 Wellington Street, Collingwood, VIC, 3066

284 Wellington Street, Collingwood, VIC, 3066

Properties / Buy / Victoria / Collingwood
Vacant Possession
Selling Method
Auction
Selling Details
Contact Agent
Floor Area
246 m² (*approx)
Property Type
Offices, Retail, Other
Zone
Residential 1
Show All
Sophisticated Residence with scope for Office/Showroom Potential!

Gross Waddell ICR is pleased to offer for Auction 284 Wellington Street Collingwood. Superbly renovated three-bedroom/ four-bathroom home where classic charm meets contemporary luxury. Soaring high ceilings create a sense of space and light throughout, while thoughtfully designed interiors showcase premium finishes and an effortless flow between living areas. The kitchen is a true centrepiece - sleek, functional, and perfect for both everyday living and entertaining, complete with quality appliances and stylish fittings. Each of the bathrooms has been impeccably crafted with modern fixtures, elegant tiling, and a touch of European sophistication.

Prime Inner-North Position – Located in the vibrant heart of Collingwood, just minutes from Melbourne CBD and the extensive dining, café and creative scene of Smith Street and surrounds.

Dual Living Potential - With its warehouse-style footprint and functional layout, this property offers the ideal base for living, working and entertaining. Perfect residential living/work showroom or office/home conversion.

Character & Scope - The heritage listing adds charm and authenticity, while the scale and zoning provides flexibility to personalise your dream home or studio-residence.

Urban Lifestyle - A perfect fit for the homeowner who values both connection to the city and the comfort of a place to call uniquely their own.

If you’re seeking a home that is understated externally but reflects style and individuality - 284 Wellington Street is waiting. Embrace the chance to craft a truly personal urban sanctuary in one of Melbourne’s most desirable inner-city suburbs. With a generous land footprint and expansive floor area that combines heritage charm with the potential to create your own distinctive edge.

This property is being offered for sale via onsite Public Auction on Saturday 13th December 2025 at 11:00am.

For further information or to arrange an inspection, please contact the exclusive sales agents from Gross Waddell ICR:

Louise Catanese 0413 659 185

Raoul Salter OAM 0418 335 432

*Approximate

Remember to mention you found this property on CommercialReady

Read More
Dataroom
Vacant Possession
Vacant Possession

284 Wellington Street Investment Summary

Property Type
Offices, Retail, Other
Floor Area
246 m² (*approx)
Zone
Residential 1
Selling Method
Auction
DATAROOM AVAILABLE
Gain Access
Auction Date
13 Dec 2025 11:00AM
Selling Details
Contact Agent

Investment Highlights

Sophisticated Residence with scope for Office/Showroom Potential!

Gross Waddell ICR is pleased to offer for Auction 284 Wellington Street Collingwood. Superbly renovated three-bedroom/ four-bathroom home where classic charm meets contemporary luxury. Soaring high ceilings create a sense of space and light throughout, while thoughtfully designed interiors showcase premium finishes and an effortless flow between living areas. The kitchen is a true centrepiece - sleek, functional, and perfect for both everyday living and entertaining, complete with quality appliances and stylish fittings. Each of the bathrooms has been impeccably crafted with modern fixtures, elegant tiling, and a touch of European sophistication.

Prime Inner-North Position – Located in the vibrant heart of Collingwood, just minutes from Melbourne CBD and the extensive dining, café and creative scene of Smith Street and surrounds.

Dual Living Potential - With its warehouse-style footprint and functional layout, this property offers the ideal base for living, working and entertaining. Perfect residential living/work showroom or office/home conversion.

Character & Scope - The heritage listing adds charm and authenticity, while the scale and zoning provides flexibility to personalise your dream home or studio-residence.

Urban Lifestyle - A perfect fit for the homeowner who values both connection to the city and the comfort of a place to call uniquely their own.

If you’re seeking a home that is understated externally but reflects style and individuality - 284 Wellington Street is waiting. Embrace the chance to craft a truly personal urban sanctuary in one of Melbourne’s most desirable inner-city suburbs. With a generous land footprint and expansive floor area that combines heritage charm with the potential to create your own distinctive edge.

This property is being offered for sale via onsite Public Auction on Saturday 13th December 2025 at 11:00am.

For further information or to arrange an inspection, please contact the exclusive sales agents from Gross Waddell ICR:

Louise Catanese 0413 659 185

Raoul Salter OAM 0418 335 432

*Approximate

Remember to mention you found this property on CommercialReady

Read More
Dataroom
Vacant Possession

Finance Calculator

284 Wellington Street, Collingwood, VIC, 3066

Secure/no obligation

Step 1

Loan Variables

Adjust the inputs to explore your indicative finance options.

Estimated Purchase Price: $x,xxx,xxx
What you intend to pay for the property
Your Contribution: $x,xxx,xxx
The amount you’re investing
LVR: $x,xxx,xxx
Loan to Value Ratio

Estimated Purchase Price:

What you intend to pay for the property

$

Your Contribution:

The amount you’re investing

Min: 0% - Max: 90% of purchase price.

$

LVR:

Loan to Value Ratio

Min: 10% - Max: 100% of purchase price.

%

Loan Analysis

Estimated Purchase Price:
Your expected purchase price. Final lender valuation may differ and will affect LVR and borrowing.
$x,xxx,xxx
Your Contribution:
Your funds toward the purchase (savings/equity/gift). Does not include costs like duty, legals or LMI.
$xxx,xxx
Loan to Value Ratio:
Calculated as Loan ÷ Price. Guidance only. Lender policy caps vary by property type, location and borrower profile.
xx%
Loan Amount:
Estimated loan based on your inputs. Excludes fees, LMI and costs. Subject to credit assessment and valuation.
$xxx,xxx
Interest Only: Monthly Repayments
Estimate using interest-only at 5.85% p.a. Excludes fees. Rates can change without notice.
in full report
Principal & Interest: Monthly Repayments
Estimate at 5.85% p.a. over 15 years, monthly compounding. Excludes fees/LMI. Rates may change.
in full report
Stamp Duty: victoria
Indicative rate for victoria. Concessions/exemptions (e.g., first home) may apply and change the amount.
in full report
Stamp Duty Cost:
Estimate only. Check SRO victoria for the latest rules and any concessions that may reduce this figure.
in full report

Property Location of 284 Wellington Street, Collingwood, VIC, 3066

Property Map
Enquire
calculator-icon Yield Calculator
calcultor-icon Yield Calculator