Watch Watch
Your home of Commercial Ready videos
Watch Watch
Back

Telegraph Hotel, 19 Morrison Street, Hobart

+24 Photos
/
Images
Close

Telegraph Hotel, 19 Morrison Street, Hobart

Hobart

×
+26 Photos

Telegraph Hotel, 19 Morrison Street, Hobart

Hobart

Telegraph Hotel, 19 Morrison Street, Hobart

Telegraph Hotel, 19 Morrison Street, Hobart

Properties / Buy / Tasmania / Hobart
Tenanted Investment
Selling Method
Expression of Interest
Selling Details
Contact Agents
Land Area
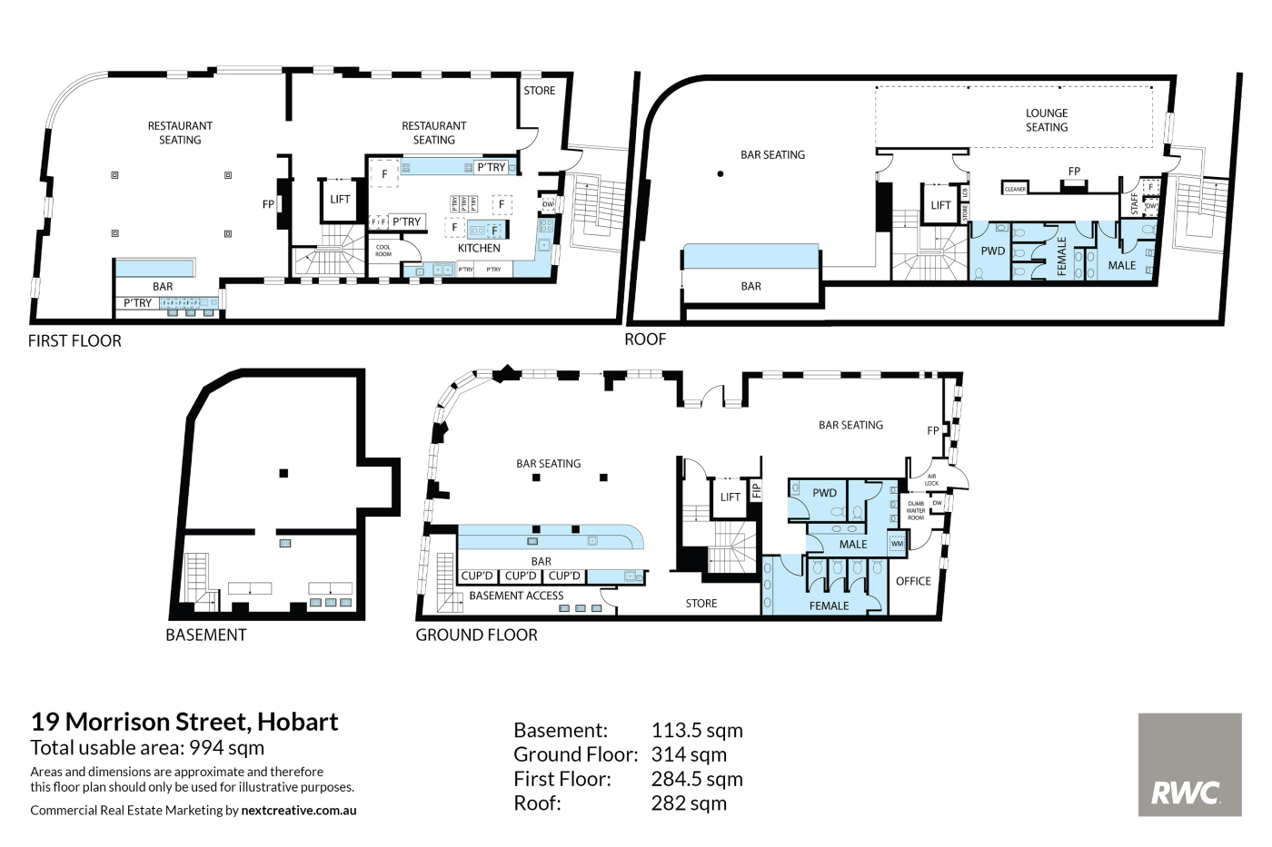
349 m² (*approx)
Floor Area
994 m² (*approx)
Property Type
Retail
Sub-type
Pub/Bar/Nightclub
Terms
10-year lease
Est. Income
$500,000 p/a
Zone
Mixed Use
Show All
Blue-Chip Waterfront Investment | 10 Year double net lease to AVC
  • Trophy Asset
  • Salamanca's only rooftop terrace bar
  • Excellent depreciation upside

RWC Tasmania and HTL Property are proud to jointly market this once in a generation, "tier 1" investment. Providing investors the opportunity to secure a true landmark waterfront hospitality asset in Hobart's coveted Salamanca precinct. 

Key Property Highlights
+ Anchored by Australian Venue Co (AVC) on a brand new 10-year lease plus options.
+ Net Income: $500,000 p.a. + GST, (tenant pays all outgoings)
+ Extensive $5 million+ refurbishment completed in 2021
+ Features the only rooftop bar in this heritage listed precinct
+ Single tenant freestanding investment leading to ease of management
+ High-profile corner location on a 349sqm* within 'Mixed Use' zoned site
+ Recent increases in building costs have made great barriers to entry for this asset class
+ Hobart is set to capitalise on the recently announced & nearby $1.1B Macquarie Point Stadium
+ AVC is Australia's largest owner of non gaming pub operations with 200 plus venues nationally

This spectacular asset is home to AVC's sole and flagship Tasmanian operation, making not only the location irreplaceable but the lease covenant equally valuable.

*Approximate

Read More
Tenanted Investment
Tenanted Investment

19 Morrison Street Investment Summary

Property Type
Retail
Sub-type
Pub/Bar/Nightclub
Est. Income
$500,000 p/a
Number Of Tenants
1
Terms
10-year lease
Land Area
349 m² (*approx)
Floor Area
994 m² (*approx)
Zone
Mixed Use
Selling Method
Expression of Interest
Selling Details
Contact Agents

Investment Highlights

Blue-Chip Waterfront Investment | 10 Year double net lease to AVC
  • Trophy Asset
  • Salamanca's only rooftop terrace bar
  • Excellent depreciation upside

RWC Tasmania and HTL Property are proud to jointly market this once in a generation, "tier 1" investment. Providing investors the opportunity to secure a true landmark waterfront hospitality asset in Hobart's coveted Salamanca precinct. 

Key Property Highlights
+ Anchored by Australian Venue Co (AVC) on a brand new 10-year lease plus options.
+ Net Income: $500,000 p.a. + GST, (tenant pays all outgoings)
+ Extensive $5 million+ refurbishment completed in 2021
+ Features the only rooftop bar in this heritage listed precinct
+ Single tenant freestanding investment leading to ease of management
+ High-profile corner location on a 349sqm* within 'Mixed Use' zoned site
+ Recent increases in building costs have made great barriers to entry for this asset class
+ Hobart is set to capitalise on the recently announced & nearby $1.1B Macquarie Point Stadium
+ AVC is Australia's largest owner of non gaming pub operations with 200 plus venues nationally

This spectacular asset is home to AVC's sole and flagship Tasmanian operation, making not only the location irreplaceable but the lease covenant equally valuable.

*Approximate

Read More
Tenanted Investment

Finance Calculator

Telegraph Hotel, 19 Morrison Street, Hobart

Secure/no obligation

Step 1

Loan Variables

Adjust the inputs to explore your indicative finance options.

Estimated Purchase Price: $x,xxx,xxx
What you intend to pay for the property
Your Contribution: $x,xxx,xxx
The amount you’re investing
LVR: $x,xxx,xxx
Loan to Value Ratio

Estimated Purchase Price:

What you intend to pay for the property

$

Your Contribution:

The amount you’re investing

Min: 0% - Max: 90% of purchase price.

$

LVR:

Loan to Value Ratio

Min: 10% - Max: 100% of purchase price.

%

Loan Analysis

Estimated Purchase Price:
Your expected purchase price. Final lender valuation may differ and will affect LVR and borrowing.
$x,xxx,xxx
Your Contribution:
Your funds toward the purchase (savings/equity/gift). Does not include costs like duty, legals or LMI.
$xxx,xxx
Loan to Value Ratio:
Calculated as Loan ÷ Price. Guidance only. Lender policy caps vary by property type, location and borrower profile.
xx%
Loan Amount:
Estimated loan based on your inputs. Excludes fees, LMI and costs. Subject to credit assessment and valuation.
in full report
Interest Only: Monthly Repayments
Estimate using interest-only at 5.85% p.a. Excludes fees. Rates can change without notice.
in full report
Principal & Interest: Monthly Repayments
Estimate at 5.85% p.a. over 15 years, monthly compounding. Excludes fees/LMI. Rates may change.
in full report
Stamp Duty: tasmania
Indicative rate for tasmania. Concessions/exemptions (e.g., first home) may apply and change the amount.
in full report
Stamp Duty Cost:
Estimate only. Check SRO tasmania for the latest rules and any concessions that may reduce this figure.
in full report

Property Location of Telegraph Hotel, 19 Morrison Street, Hobart

One moment please.

Retrieving map...

Telegraph Hotel, 19 Morrison Street, Hobart Hobart
HTL Property
HTL Property
Level 3, 319 George Street, Sydney NSW 2000 Australia
Explore other suburbs in this area
Explore other suburbs in this area
Enquire
calculator-icon Yield Calculator
calcultor-icon Yield Calculator