Watch Watch
Your home of Commercial Ready videos
Watch Watch
Back

17/131 Hyde Street, Footscray, VIC, 3011

+16 Photos
/
Images
Close

17/131 Hyde Street, Footscray, VIC, 3011

Footscray

×
+18 Photos

17/131 Hyde Street, Footscray, VIC, 3011

Footscray

17/131 Hyde Street, Footscray, VIC, 3011

17/131 Hyde Street, Footscray, VIC, 3011

Properties / Buy / Victoria / Footscray
Vacant Possession
Selling Method
Sale by Negotiation
Selling Details
Contact Agents
Land Area
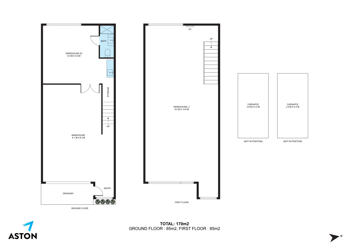
170 m² (*approx)
Floor Area
170 m² (*approx)
Property Type
Industrial
Sub-type
Office/Warehouse
Zone
Industrial 3
Car Spaces
2
Show All
AFFORDABLE INDUSTRIAL OPPORTUNITY WITH FLEXIBILITY
  • Building area of 170m²*
  • Vacant possession
  • Two (2) car spaces

Aston are pleased to offer 17/131 Hyde Street, Footscray by Deadline Private Sale closing Friday 17 April at 3pm.

Positioned within one of the inner west’s most tightly held industrial precincts, 17/131 Hyde Street, Footscray presents an outstanding opportunity for owner-occupiers and investors seeking a functional and well-connected commercial space.

The features:

• Total building area of 170m²*

• First floor office of 85m²*

• Two (2) car spaces

• Offered with vacant possession

• Kitchenette facilities and amenities

• Free all day on street parking

• Unrivalled convenience - 5km* to CBD and Port

• Easy walk to Yarraville cafes and Train Station precinct

• Industrial 3 Zoning

Strategically located within the established industrial pocket of Footscray, the property benefits from excellent connectivity to key arterial routes including Hyde Street and nearby Dynon Road, providing direct access to the Melbourne CBD, the Port of Melbourne and Melbourne’s broader freeway network.

With its combination of functional improvements, modern office accommodation and a highly accessible inner-west location, this property represents a compelling opportunity to secure a quality industrial asset in a sought-after commercial precinct.

Contact the agents below to book your private inspection.

*approximate

Remember to mention you found this property on CommercialReady

Read More
Dataroom
Vacant Possession
Vacant Possession

17/131 Hyde Street Investment Summary

Property Type
Industrial
Sub-type
Office/Warehouse
Land Area
170 m² (*approx)
Floor Area
170 m² (*approx)
Zone
Industrial 3
Car Spaces
2
Selling Method
Sale by Negotiation
DATAROOM AVAILABLE
Gain Access
Selling Details
Contact Agents

Investment Highlights

AFFORDABLE INDUSTRIAL OPPORTUNITY WITH FLEXIBILITY
  • Building area of 170m²*
  • Vacant possession
  • Two (2) car spaces

Aston are pleased to offer 17/131 Hyde Street, Footscray by Deadline Private Sale closing Friday 17 April at 3pm.

Positioned within one of the inner west’s most tightly held industrial precincts, 17/131 Hyde Street, Footscray presents an outstanding opportunity for owner-occupiers and investors seeking a functional and well-connected commercial space.

The features:

• Total building area of 170m²*

• First floor office of 85m²*

• Two (2) car spaces

• Offered with vacant possession

• Kitchenette facilities and amenities

• Free all day on street parking

• Unrivalled convenience - 5km* to CBD and Port

• Easy walk to Yarraville cafes and Train Station precinct

• Industrial 3 Zoning

Strategically located within the established industrial pocket of Footscray, the property benefits from excellent connectivity to key arterial routes including Hyde Street and nearby Dynon Road, providing direct access to the Melbourne CBD, the Port of Melbourne and Melbourne’s broader freeway network.

With its combination of functional improvements, modern office accommodation and a highly accessible inner-west location, this property represents a compelling opportunity to secure a quality industrial asset in a sought-after commercial precinct.

Contact the agents below to book your private inspection.

*approximate

Remember to mention you found this property on CommercialReady

Read More
Dataroom
Vacant Possession

Finance Calculator

17/131 Hyde Street, Footscray, VIC, 3011

Secure/no obligation

Step 1

Loan Variables

Adjust the inputs to explore your indicative finance options.

Estimated Purchase Price: $x,xxx,xxx
What you intend to pay for the property
Your Contribution: $x,xxx,xxx
The amount you’re investing
LVR: $x,xxx,xxx
Loan to Value Ratio

Estimated Purchase Price:

What you intend to pay for the property

$

Your Contribution:

The amount you’re investing

Min: 0% - Max: 90% of purchase price.

$

LVR:

Loan to Value Ratio

Min: 10% - Max: 100% of purchase price.

%

Loan Analysis

Estimated Purchase Price:
Your expected purchase price. Final lender valuation may differ and will affect LVR and borrowing.
$x,xxx,xxx
Your Contribution:
Your funds toward the purchase (savings/equity/gift). Does not include costs like duty, legals or LMI.
$xxx,xxx
Loan to Value Ratio:
Calculated as Loan ÷ Price. Guidance only. Lender policy caps vary by property type, location and borrower profile.
xx%
Loan Amount:
Estimated loan based on your inputs. Excludes fees, LMI and costs. Subject to credit assessment and valuation.
in full report
Interest Only: Monthly Repayments
Estimate using interest-only at 5.85% p.a. Excludes fees. Rates can change without notice.
in full report
Principal & Interest: Monthly Repayments
Estimate at 5.85% p.a. over 15 years, monthly compounding. Excludes fees/LMI. Rates may change.
in full report
Stamp Duty: victoria
Indicative rate for victoria. Concessions/exemptions (e.g., first home) may apply and change the amount.
in full report
Stamp Duty Cost:
Estimate only. Check SRO victoria for the latest rules and any concessions that may reduce this figure.
in full report

Property Location of 17/131 Hyde Street, Footscray, VIC, 3011

One moment please.

Retrieving map...

17/131 Hyde Street, Footscray, VIC, 3011 Footscray
Enquire
calculator-icon Yield Calculator
calcultor-icon Yield Calculator