Watch Watch
Your home of Commercial Ready videos
Watch Watch
Back
Sold Check

12,14,16,17,20,21,25, 16-28 Research Road, Pooraka, SA, 5095

+29 Photos
/
Images
Close

12,14,16,17,20,21,25, 16-28 Research Road, Pooraka, SA, 5095

Pooraka

×
Sold Check
+31 Photos

12,14,16,17,20,21,25, 16-28 Research Road, Pooraka, SA, 5095

Pooraka

SOLD
12,14,16,17,20,21,25, 16-28 Research Road, Pooraka, SA, 5095

12,14,16,17,20,21,25, 16-28 Research Road, Pooraka, SA, 5095

Properties / Sold / South Australia / Pooraka
Tenanted Investment
Selling Method
EOI
Selling Details
3000000
Land Area
1,413 m² (*approx)
Floor Area
1413
Property Type
Industrial, Retail, Other
Sub-type
Warehouse Showroom
Show All
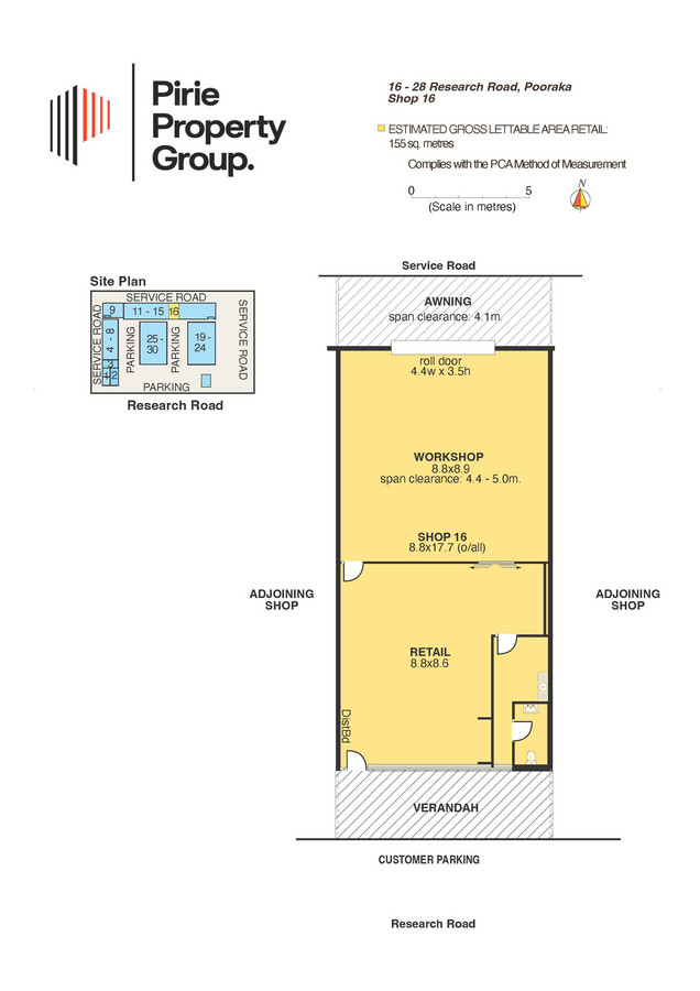
Seven Affordable Warehouses in Prime Pooraka Location
  • 7 individual showroom warehouses
  • Affordable investments
  • to be sold In One Line or Individually

Pirie Property Group are delighted to offer Units 12, 14, 16, 17, 20, 21 & 25, 16-28 Research Road, Pooraka for sale by Expressions of Interest either individually or In One Line.

Of the seven super versatile Strata Titled Commercial properties, six are leased on varying lease terms and one which is vacant, all on individual Titles, making it the perfect opportunity to buy one, multiple or All.

Perfectly suited for private investors and or owner-occupiers, these properties offer a super affordable price point, making them an attractive option for those looking to diversify their investment portfolio or to setup shop. Each showroom warehouse is designed to meet a variety of business needs, providing ample space for storage, showroom and car parking.

Pooraka is a thriving suburb known for its variety, including the nearby Parafield Airport, Mawson Lakes Town Centre and University, Technology Park, Paddy's Markets and much more. It is conveniently located with ease of access to eastern suburbs and all major transport routes. Located just a short drive from the city center, this area is ideal for businesses seeking proximity to Adelaide's key commercial hubs. The suburb also offers a range of amenities and services, ensuring that your business operations run smoothly and efficiently.

Don't miss out on this unique investment opportunity in one of Adelaide's most sought-after industrial precincts. With seven individual warehouses to choose from, you have the flexibility to select the one that best suits your needs. Act now to secure your spot in this prime location and take advantage of the affordable pricing.

This property is being offered for sale by public Expressions of Interest, closing on Thursday, 7th November 2024 at 4:00pm (ACDT) (unless sold prior).

For more information, contact the agents below:

Jordan Kies

0408 332 069

David Reid

0418 810 865

*Approximately

RLA 336384

Remember to mention you found this property on CommercialReady

Read More
Tenanted Investment
Tenanted Investment

16-28 Research Road Investment Summary

Property Type
Industrial, Retail, Other
Sub-type
Warehouse Showroom
Number Of Tenants
6
Land Area
1,413 m² (*approx)
Floor Area
1413
Selling Method
EOI
Selling Details
3000000

Investment Highlights

Seven Affordable Warehouses in Prime Pooraka Location
  • 7 individual showroom warehouses
  • Affordable investments
  • to be sold In One Line or Individually

Pirie Property Group are delighted to offer Units 12, 14, 16, 17, 20, 21 & 25, 16-28 Research Road, Pooraka for sale by Expressions of Interest either individually or In One Line.

Of the seven super versatile Strata Titled Commercial properties, six are leased on varying lease terms and one which is vacant, all on individual Titles, making it the perfect opportunity to buy one, multiple or All.

Perfectly suited for private investors and or owner-occupiers, these properties offer a super affordable price point, making them an attractive option for those looking to diversify their investment portfolio or to setup shop. Each showroom warehouse is designed to meet a variety of business needs, providing ample space for storage, showroom and car parking.

Pooraka is a thriving suburb known for its variety, including the nearby Parafield Airport, Mawson Lakes Town Centre and University, Technology Park, Paddy's Markets and much more. It is conveniently located with ease of access to eastern suburbs and all major transport routes. Located just a short drive from the city center, this area is ideal for businesses seeking proximity to Adelaide's key commercial hubs. The suburb also offers a range of amenities and services, ensuring that your business operations run smoothly and efficiently.

Don't miss out on this unique investment opportunity in one of Adelaide's most sought-after industrial precincts. With seven individual warehouses to choose from, you have the flexibility to select the one that best suits your needs. Act now to secure your spot in this prime location and take advantage of the affordable pricing.

This property is being offered for sale by public Expressions of Interest, closing on Thursday, 7th November 2024 at 4:00pm (ACDT) (unless sold prior).

For more information, contact the agents below:

Jordan Kies

0408 332 069

David Reid

0418 810 865

*Approximately

RLA 336384

Remember to mention you found this property on CommercialReady

Read More
Tenanted Investment

Finance Calculator

12,14,16,17,20,21,25, 16-28 Research Road, Pooraka, SA, 5095

Secure/no obligation

Step 1

Loan Variables

Adjust the inputs to explore your indicative finance options.

Estimated Purchase Price: $x,xxx,xxx
What you intend to pay for the property
Your Contribution: $x,xxx,xxx
The amount you’re investing
LVR: $x,xxx,xxx
Loan to Value Ratio

Estimated Purchase Price:

What you intend to pay for the property

$

Your Contribution:

The amount you’re investing

Min: 0% - Max: 90% of purchase price.

$

LVR:

Loan to Value Ratio

Min: 10% - Max: 100% of purchase price.

%

Loan Analysis

Estimated Purchase Price:
Your expected purchase price. Final lender valuation may differ and will affect LVR and borrowing.
$x,xxx,xxx
Your Contribution:
Your funds toward the purchase (savings/equity/gift). Does not include costs like duty, legals or LMI.
$xxx,xxx
Loan to Value Ratio:
Calculated as Loan ÷ Price. Guidance only. Lender policy caps vary by property type, location and borrower profile.
xx%
Loan Amount:
Estimated loan based on your inputs. Excludes fees, LMI and costs. Subject to credit assessment and valuation.
in full report
Interest Only: Monthly Repayments
Estimate using interest-only at 5.85% p.a. Excludes fees. Rates can change without notice.
in full report
Principal & Interest: Monthly Repayments
Estimate at 5.85% p.a. over 15 years, monthly compounding. Excludes fees/LMI. Rates may change.
in full report
Stamp Duty: south australia
Indicative rate for south australia. Concessions/exemptions (e.g., first home) may apply and change the amount.
in full report
Stamp Duty Cost:
Estimate only. Check SRO south australia for the latest rules and any concessions that may reduce this figure.
in full report

Property Location of 12,14,16,17,20,21,25, 16-28 Research Road, Pooraka, SA, 5095

One moment please.

Retrieving map...

12,14,16,17,20,21,25, 16-28 Research Road, Pooraka, SA, 5095 Pooraka
calculator-icon Yield Calculator
calcultor-icon Yield Calculator