Watch Watch
Your home of Commercial Ready videos
Watch Watch
Back

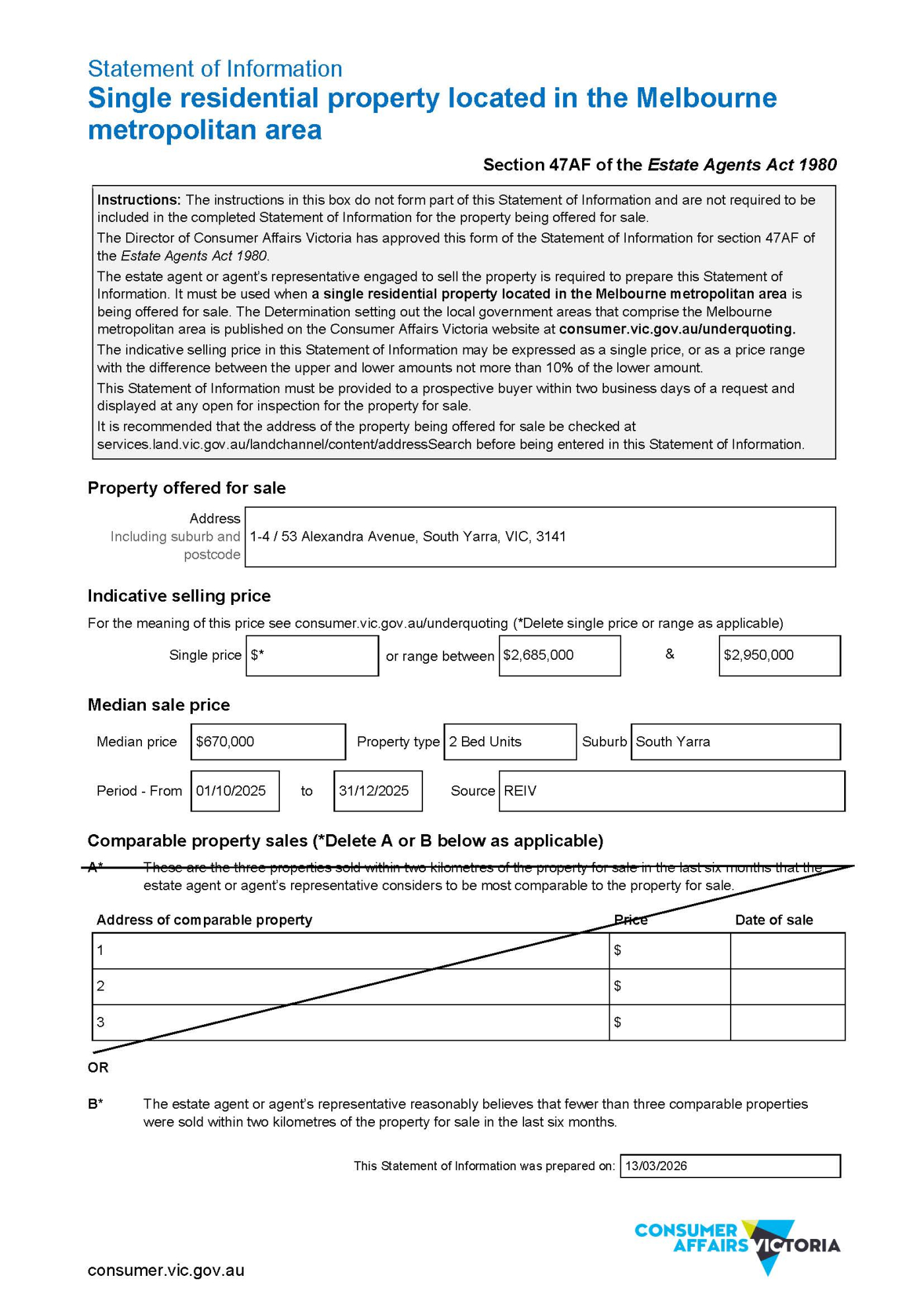
St Arno, 1-4 / 53 Alexandra Avenue, Cnr Dobson Street, South Yarra, VIC, 3141

+14 Photos
/
Images
Close

St Arno, 1-4 / 53 Alexandra Avenue, Cnr Dobson Street, South Yarra, VIC, 3141

South Yarra

×
+16 Photos

St Arno, 1-4 / 53 Alexandra Avenue, Cnr Dobson Street, South Yarra, VIC, 3141

South Yarra

St Arno, 1-4 / 53 Alexandra Avenue, Cnr Dobson Street, South Yarra, VIC, 3141

St Arno, 1-4 / 53 Alexandra Avenue, Cnr Dobson Street, South Yarra, VIC, 3141

Properties / Buy / Victoria / South Yarra
Tenanted Investment
Selling Method
EOI
Selling Details
Contact Agent
Land Area
670 m² (*approx)
Floor Area
440 m² (*approx)
Property Type
Other, Land
Sub-type
Block of Units / Flats
Est. Income
$125,000 p/a
Zone
General Residential
Show All
“St Arno” - 1930’s Block of Apartments on Individual Titles Offered in One-Line

Sought-after 1930’s apartment block comprising 4 large apartments on individual titles, retaining a host of period detail and charm from the era, superbly positioned in prestigious South Yarra, overlooking Melbourne’s iconic Yarra River and surrounded by an abundance of enviable lifestyle amenities.

• Comprising 4 large 2-bedroom apartments (circa 97sqm* each) all with single lock up garage and either rear courtyard or garden

• All apartments feature spacious living, separate kitchen with meals area, bathroom with laundry facilities and balcony

• Potential market rental circa $125,000 p.a. (on fully let basis)

• General Residential (GRZ3) landholding of 670sqm*

• Superb location close to public transport, shops, parklands and only 2.5km* from Melbourne’s CBD

• Ideal “set & forget” investment or add-value and sell down

For Sale via Expressions of Interest Closing Thursday 19th March 2026 at 2:00pm.

Open for Inspection every Saturday & Wednesday throughout the campaign.

Saturdays 10:00 - 10:30am

Wednesdays 12:00 (noon) - 12:30pm

For more information or to arrange an inspection, please contact the below:

Gross Waddell ICR:

Raoul Salter OAM 0418 335 432

Andrew Greenway 0409 547 626

Kelly & Shiel:

Damien Shiel 0419 394 999

*approximate

Remember to mention you found this property on CommercialReady

Read More
Dataroom
Tenanted Investment
Tenanted Investment

1-4 / 53 Alexandra Avenue, Cnr Dobson Street Investment Summary

Property Type
Other, Land
Sub-type
Block of Units / Flats
Est. Income
$125,000 p/a
Land Area
670 m² (*approx)
Floor Area
440 m² (*approx)
Zone
General Residential
Selling Method
EOI
DATAROOM AVAILABLE
Gain Access
EOI Closing Date
19 Mar 2026 02:00PM
Selling Details
Contact Agent

Investment Highlights

“St Arno” - 1930’s Block of Apartments on Individual Titles Offered in One-Line

Sought-after 1930’s apartment block comprising 4 large apartments on individual titles, retaining a host of period detail and charm from the era, superbly positioned in prestigious South Yarra, overlooking Melbourne’s iconic Yarra River and surrounded by an abundance of enviable lifestyle amenities.

• Comprising 4 large 2-bedroom apartments (circa 97sqm* each) all with single lock up garage and either rear courtyard or garden

• All apartments feature spacious living, separate kitchen with meals area, bathroom with laundry facilities and balcony

• Potential market rental circa $125,000 p.a. (on fully let basis)

• General Residential (GRZ3) landholding of 670sqm*

• Superb location close to public transport, shops, parklands and only 2.5km* from Melbourne’s CBD

• Ideal “set & forget” investment or add-value and sell down

For Sale via Expressions of Interest Closing Thursday 19th March 2026 at 2:00pm.

Open for Inspection every Saturday & Wednesday throughout the campaign.

Saturdays 10:00 - 10:30am

Wednesdays 12:00 (noon) - 12:30pm

For more information or to arrange an inspection, please contact the below:

Gross Waddell ICR:

Raoul Salter OAM 0418 335 432

Andrew Greenway 0409 547 626

Kelly & Shiel:

Damien Shiel 0419 394 999

*approximate

Remember to mention you found this property on CommercialReady

Read More
Dataroom
Tenanted Investment

Finance Calculator

St Arno, 1-4 / 53 Alexandra Avenue, Cnr Dobson Street, South Yarra, VIC, 3141

Secure/no obligation

Step 1

Loan Variables

Adjust the inputs to explore your indicative finance options.

Estimated Purchase Price: $x,xxx,xxx
What you intend to pay for the property
Your Contribution: $x,xxx,xxx
The amount you’re investing
LVR: $x,xxx,xxx
Loan to Value Ratio

Estimated Purchase Price:

What you intend to pay for the property

$

Your Contribution:

The amount you’re investing

Min: 0% - Max: 90% of purchase price.

$

LVR:

Loan to Value Ratio

Min: 10% - Max: 100% of purchase price.

%

Loan Analysis

Estimated Purchase Price:
Your expected purchase price. Final lender valuation may differ and will affect LVR and borrowing.
$x,xxx,xxx
Your Contribution:
Your funds toward the purchase (savings/equity/gift). Does not include costs like duty, legals or LMI.
$xxx,xxx
Loan to Value Ratio:
Calculated as Loan ÷ Price. Guidance only. Lender policy caps vary by property type, location and borrower profile.
xx%
Loan Amount:
Estimated loan based on your inputs. Excludes fees, LMI and costs. Subject to credit assessment and valuation.
$xxx,xxx
Interest Only: Monthly Repayments
Estimate using interest-only at 5.85% p.a. Excludes fees. Rates can change without notice.
in full report
Principal & Interest: Monthly Repayments
Estimate at 5.85% p.a. over 15 years, monthly compounding. Excludes fees/LMI. Rates may change.
in full report
Stamp Duty: victoria
Indicative rate for victoria. Concessions/exemptions (e.g., first home) may apply and change the amount.
in full report
Stamp Duty Cost:
Estimate only. Check SRO victoria for the latest rules and any concessions that may reduce this figure.
in full report

Property Location of St Arno, 1-4 / 53 Alexandra Avenue, Cnr Dobson Street, South Yarra, VIC, 3141

Property Map
St Arno, 1-4 / 53 Alexandra Avenue, Cnr Dobson Street, South Yarra, VIC, 3141 South Yarra
Enquire
calculator-icon Yield Calculator
calcultor-icon Yield Calculator