Watch Watch
Your home of Commercial Ready videos
Watch Watch
Back
Sold Check

462-466 Fitzgerald Street, North Perth, WA, 6006

+15 Photos
/
Images
Close

462-466 Fitzgerald Street, North Perth, WA, 6006

North Perth

×
Sold Check
+17 Photos

462-466 Fitzgerald Street, North Perth, WA, 6006

North Perth

SOLD
462-466 Fitzgerald Street, North Perth, WA, 6006

462-466 Fitzgerald Street, North Perth, WA, 6006

Properties / Sold / Western Australia / North Perth
Tenanted Investment
Selling Method
EOI
Selling Details
UNDER OFFER
Land Area
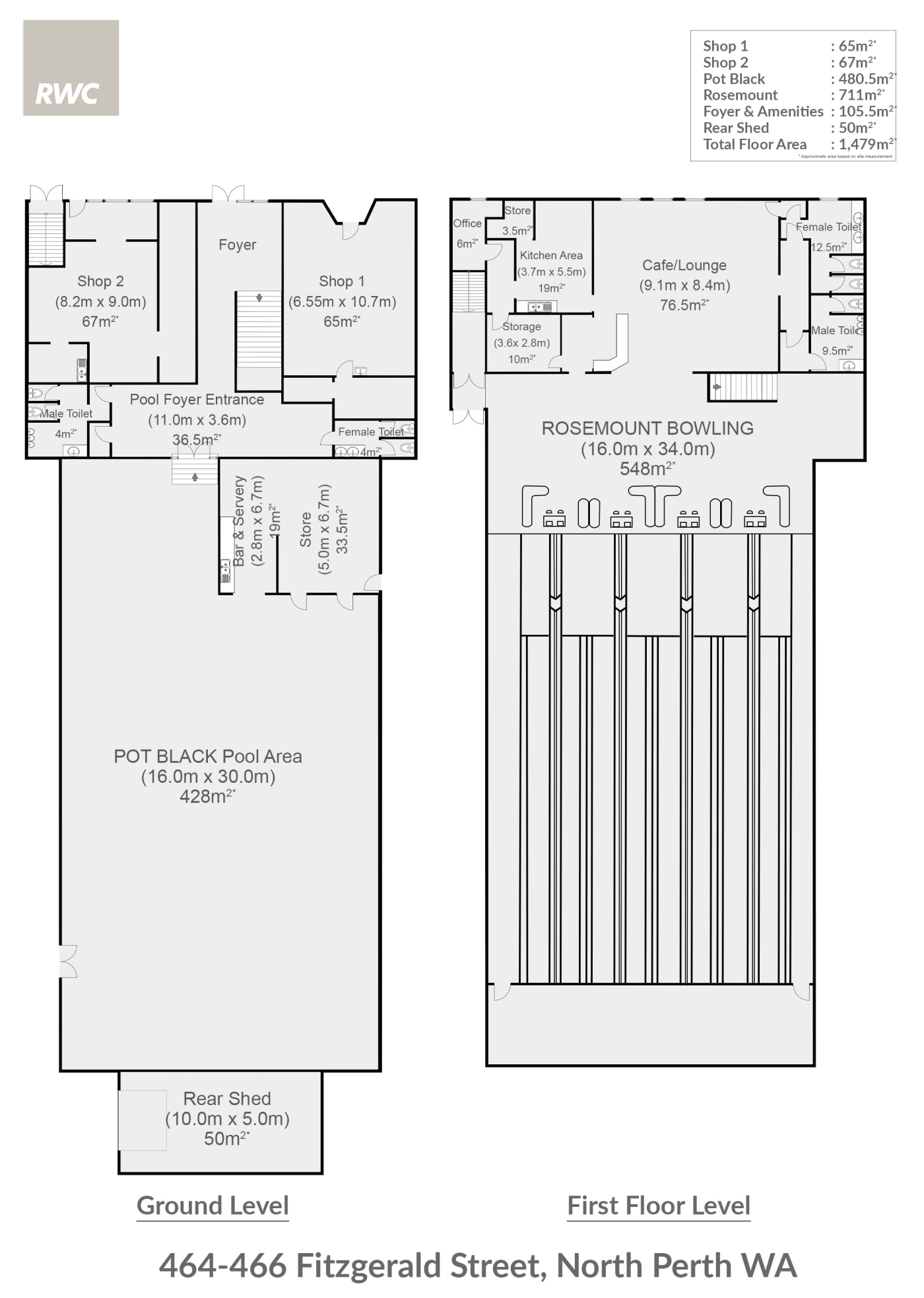
1,277 m² (*approx)
Floor Area
1317 m² (*approx)
Property Type
Other
Est. Income
$248,310 p/a
Show All
Leased Investment - 6.5 year W.A.L.E. Future Development Upside, Gateway to Angove Street

RWC WA are pleased to present this prominent investment situated within the heart of the Fitzgerald Street retail and dining precinct.

The building comprises a two-level structure leased to Rosemount Bowling, Pot Black and Bloodline Ink tattoo parlour. The premises is a gateway building well recognised with the current businesses having been in occupation of the premises since 1990.

Upon the expiry of the leases, the property has medium to long term redevelopment potential, with the current District Zoning allowing for future high-density development. This unique offering also benefits from the complete ownership of the adjoining laneway, further benefitting any future redevelopment and effectively granting the property dual street frontages.

Property features:

• Passing net income of $248,310 + outgoings + GST

• 6.5 year Weighted Average Lease Expiry

• Land area 1,277sqm including Exclusive ownership of adjoining bitumen laneway (207sqm)

• 4-7 level development potential

• High exposure to the intersection of Fitzgerald Street and Angove Street

• Three prominent and renowned tenants

• Directly opposite the Rosemount Hotel

• District Centre zoning

• Enviable North Perth location

For Sale via Expression of Interest campaign closing Thu 6 Mar 2025 at 4pm AWST.

For further information and to arrange inspection please contact the exclusive selling agents:

Stephen Harrison

0421 622 777

[email protected]

Brett Wilkins

0478 611 168

[email protected]

*Approx

Remember to mention you found this property on CommercialReady

Read More
Tenanted Investment
Tenanted Investment

462-466 Fitzgerald Street Investment Summary

Property Type
Other
Est. Income
$248,310 p/a
Wale
6.5 years
Land Area
1,277 m² (*approx)
Floor Area
1317 m² (*approx)
Selling Method
EOI
Selling Details
UNDER OFFER

Investment Highlights

Leased Investment - 6.5 year W.A.L.E. Future Development Upside, Gateway to Angove Street

RWC WA are pleased to present this prominent investment situated within the heart of the Fitzgerald Street retail and dining precinct.

The building comprises a two-level structure leased to Rosemount Bowling, Pot Black and Bloodline Ink tattoo parlour. The premises is a gateway building well recognised with the current businesses having been in occupation of the premises since 1990.

Upon the expiry of the leases, the property has medium to long term redevelopment potential, with the current District Zoning allowing for future high-density development. This unique offering also benefits from the complete ownership of the adjoining laneway, further benefitting any future redevelopment and effectively granting the property dual street frontages.

Property features:

• Passing net income of $248,310 + outgoings + GST

• 6.5 year Weighted Average Lease Expiry

• Land area 1,277sqm including Exclusive ownership of adjoining bitumen laneway (207sqm)

• 4-7 level development potential

• High exposure to the intersection of Fitzgerald Street and Angove Street

• Three prominent and renowned tenants

• Directly opposite the Rosemount Hotel

• District Centre zoning

• Enviable North Perth location

For Sale via Expression of Interest campaign closing Thu 6 Mar 2025 at 4pm AWST.

For further information and to arrange inspection please contact the exclusive selling agents:

Stephen Harrison

0421 622 777

[email protected]

Brett Wilkins

0478 611 168

[email protected]

*Approx

Remember to mention you found this property on CommercialReady

Read More
Tenanted Investment

Finance Calculator

462-466 Fitzgerald Street, North Perth, WA, 6006

Secure/no obligation

Step 1

Loan Variables

Adjust the inputs to explore your indicative finance options.

Estimated Purchase Price: $x,xxx,xxx
What you intend to pay for the property
Your Contribution: $x,xxx,xxx
The amount you’re investing
LVR: $x,xxx,xxx
Loan to Value Ratio

Estimated Purchase Price:

What you intend to pay for the property

$

Your Contribution:

The amount you’re investing

Min: 0% - Max: 90% of purchase price.

$

LVR:

Loan to Value Ratio

Min: 10% - Max: 100% of purchase price.

%

Loan Analysis

Estimated Purchase Price:
Your expected purchase price. Final lender valuation may differ and will affect LVR and borrowing.
$x,xxx,xxx
Your Contribution:
Your funds toward the purchase (savings/equity/gift). Does not include costs like duty, legals or LMI.
$xxx,xxx
Loan to Value Ratio:
Calculated as Loan ÷ Price. Guidance only. Lender policy caps vary by property type, location and borrower profile.
xx%
Loan Amount:
Estimated loan based on your inputs. Excludes fees, LMI and costs. Subject to credit assessment and valuation.
$xxx,xxx
Interest Only: Monthly Repayments
Estimate using interest-only at 5.85% p.a. Excludes fees. Rates can change without notice.
in full report
Principal & Interest: Monthly Repayments
Estimate at 5.85% p.a. over 15 years, monthly compounding. Excludes fees/LMI. Rates may change.
in full report
Stamp Duty: western australia
Indicative rate for western australia. Concessions/exemptions (e.g., first home) may apply and change the amount.
in full report
Stamp Duty Cost:
Estimate only. Check SRO western australia for the latest rules and any concessions that may reduce this figure.
in full report

Property Location of 462-466 Fitzgerald Street, North Perth, WA, 6006

Property Map
462-466 Fitzgerald Street, North Perth, WA, 6006 North Perth
calculator-icon Yield Calculator
calcultor-icon Yield Calculator